0mq

-
0 Piace
0 Piace

Dati annuncio : Vendita Case, Sarzana

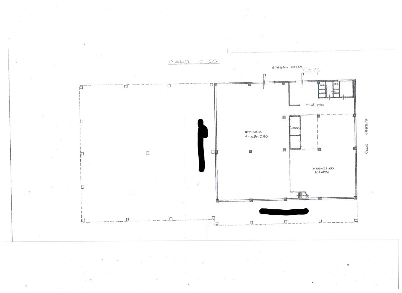
Nella zona industriale di Sarzana si affitta capannone disposto su due livelli così suddivisi:
Piano terra (destinazione d´uso commerciale) mq 400 con piazzale esterno - canone mensile euro 4.000 + iva
Piano inferiore (destinazione d´uso artigianale) mq 800 con via d´accesso e possibilità di parcheggio - canone mensile 3.500 + iva
Gli immobili sono disponibili anche per la vendita, anche singolarmente.

  • PropostaOffro
  • ContrattoVendita
  • Prezzo-
  • Numero piani1
  • Classe energetica (ipe)0.0
  • AscensoreNo
  • TerrazzoNo
  • GiardinoNs
  • CantinaNo
  • ProvinciaLa spezia
  • ComuneSarzana
  • Data18-08-2025 05:07:34
  • CodiceEA-A088F8