0mq

1,00 €
0 Piace
0 Piace

Dati annuncio : Vendita Case, Sarzana

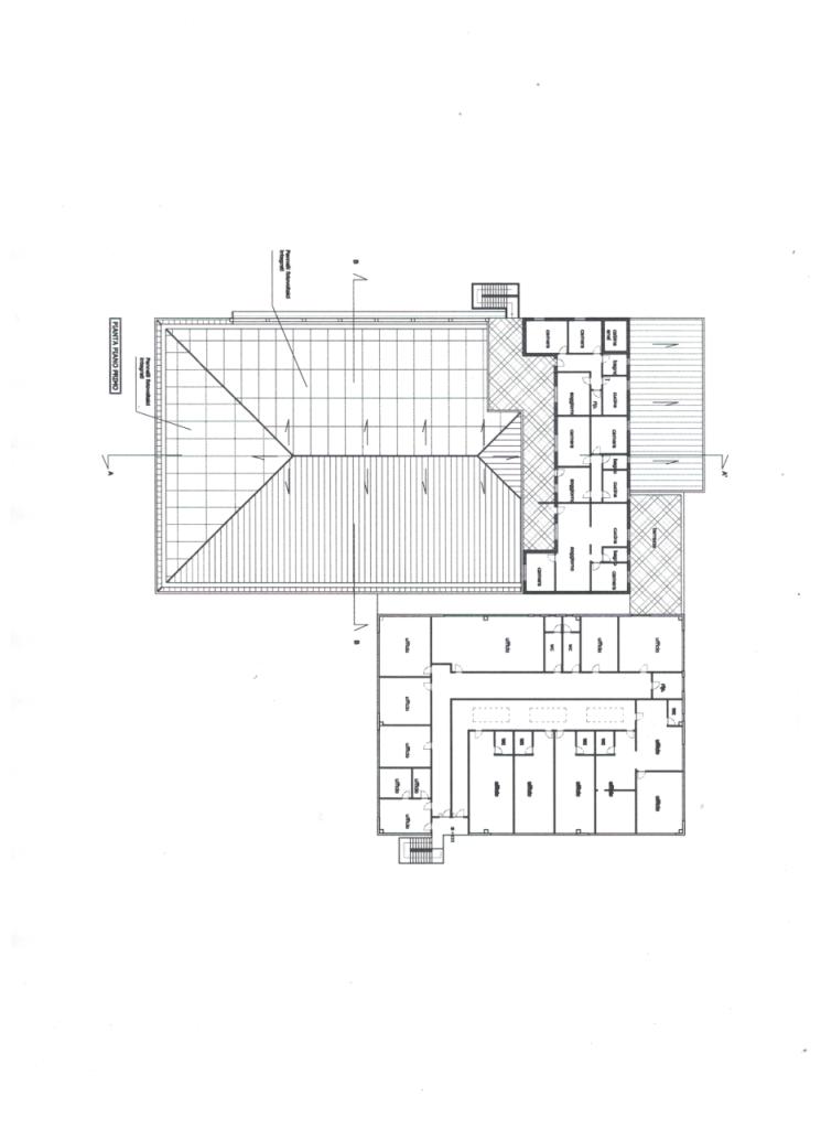
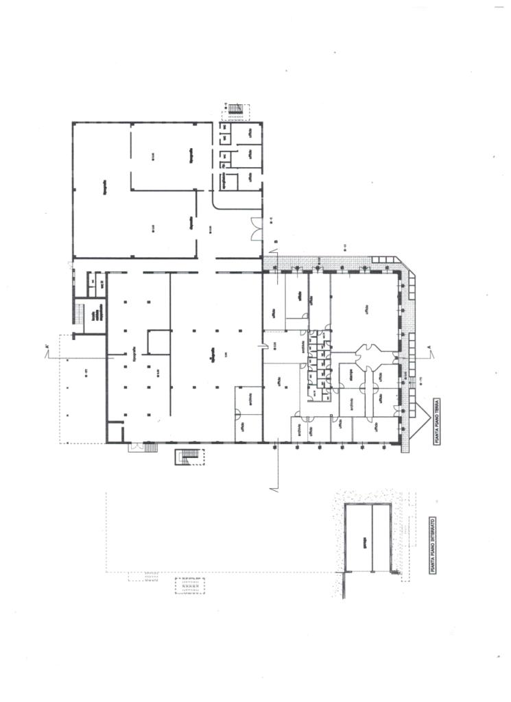
Fabbricato comprendente due unità immobiliari composta da capannone industriale disposti su due livelli una parte di mq. 1600, la seconda parte du due livelli di mq. 800 ciascuno, con uffici, e servizi. Altezze di mt. 5, possiiblità di carroponte.Ampio parcheggio esterno con tettoia e possibilità di accesso ai tir. Oltre a 3 appartamento con metratura ciascuno di 100.

  • PropostaOffro
  • ContrattoVendita
  • Prezzo1,00 €
  • Classe energetica (ipe)0.0
  • StatoBuono
  • AscensoreNo
  • TerrazzoNo
  • GiardinoNs
  • CantinaNo
  • ProvinciaLa spezia
  • ComuneSarzana
  • Data12-10-2025 06:04:21
  • CodiceEA-BC1156