12 vani 1700mq

899.000,00 €
0 Piace
0 Piace

Dati annuncio : Vendita Multivani, Figline e Incisa Valdarno

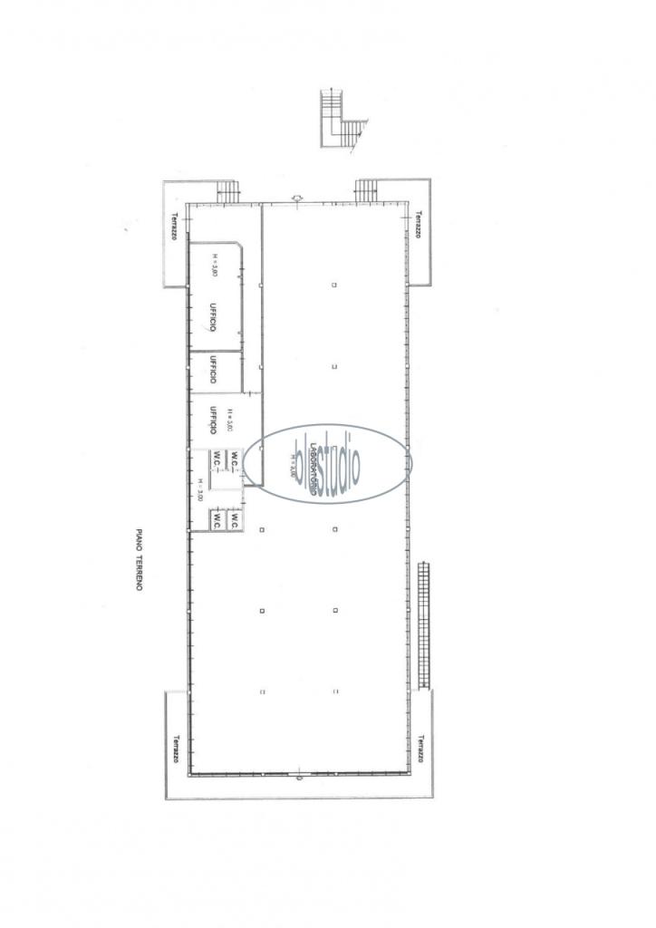
Incisa V.no, Immediate vicinanze casello autostradale, proponiamo in vendita capannone per svolgimento attività industriale (cat. D7). L´immobile consta di una superficie di circa 1700 mq, così suddivisa:
- piano terreno di mq 700 ca composto da due grandi locali con h di 5,10 mt , provvisti di bagni , n. 3 uffici e sei sporti carrabili;
- piano terreno rialzato/piano primo di mq 700, composto da unico grande locale con h di 3 mt, oltre area uffici, servizi e resedi ;
- piano secondo di mq 300 ca con h di 2,80 mt, composto da ingresso, unico grande vano , uffici , servizi e terrazzi.
Completa la proprietà un piazzale privato libero su tre lati di mq 2500 ca.
Per ulteriori informazioni e per fissare una visita potete contattarci allo 055959418, dalle 9:30 alle 13:00 e dalle 15:00 alle 19:00 dal lunedì al venerdì, oppure inviando una richiesta alla sezione ´´CONTATTI´´.

Lavoriamo da anni sul mercato degli immobili del Valdarno Fiorentino e comuni limitrofi e oggi siamo una realtà consolidata in grado di offrire ai nostri clienti un servizio altamente professionale, consentendo loro di acquistare in modo sicuro la ´´casa dei sogni´´. Saremo a Vostra completa disposizione per trovare, scegliere e consigliare l´immobile che fa al caso Vostro.

Tutti i dettagli e i dati tecnici indicati nelle descrizioni pubblicate sono stati forniti in buona fede in seguito a sopralluogo e sulla base della documentazione disponibile. Non ci assumiamo alcuna responsabilità per eventuali inesattezze.
Si precisa che, per proteggere la privacy dei proprietari, il punto indicato sulla mappa è puramente indicativo.
Classe Energetica: G - IPE: 0.00kWh/mq anno

  • PropostaOffro
  • ContrattoVendita
  • Prezzo899.000,00 €
  • Vani12
  • Numero piani3
  • Mq totali1700
  • Bagni10
  • Classe energeticaG
  • StatoBuono
  • AscensoreNo
  • Tipo costruzioneCommerciale
  • DisponibilitLibero
  • ProvinciaFirenze
  • ComuneFigline e incisa valdarno
  • Data08-08-2025 06:10:20
  • CodiceEA-4CC5B6