7 vani 154mq

480.000,00 €
0 Piace
0 Piace

Dati annuncio : Vendita Eptavani, Ameglia

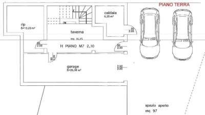
Bocca di Magra. Villa in bifamiliare in posizione tranquilla e riservata. Disposta su 3 livelli, con cortile privato, garage, giardino privato, 2 bagni, doccia esterna in muratura, ampio porticato, nr. 3 stanze da letto di cui 2 parzialmente soppalcate, armadi su misura, caldaia a condensazione nuova. L´immobile è così suddiviso: Piano primo - ampio soggiorno, cucina abitabile, portico pranzabie, bagno. Piano secondo - tre camere, bagno, portico. Piano terra - taverna, garage, ripostiglio, vano caldaia. Piano Terra : 60.2 mq + 97 (cortile) Piano Primo : 39 mq + 20 (portico) = 59 mq Piano Secondo : 54.5 mq + 7.3 (veranda) = 61.8 mq
TOTALE : 153.7 (calpestabili reali escluso scale) Giardino : 182 mq circa Cortile : 97 mq circa

  • PropostaOffro
  • ContrattoVendita
  • Prezzo480.000,00 €
  • Vani7
  • Mq totali154
  • Classe energetica (ipe)0.0
  • StatoBuono
  • AscensoreNo
  • TerrazzoNo
  • GiardinoNs
  • CantinaNo
  • ProvinciaLa spezia
  • ComuneAmeglia
  • Data12-10-2025 06:04:21
  • CodiceEA-F2FD8D