9 vani 1800mq

-
0 Piace
0 Piace

Dati annuncio : Vendita Multivani, Fregona

RIF: AM45

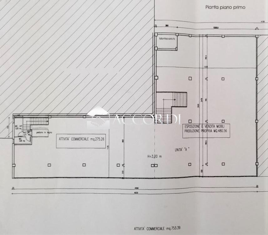
Vendesi interessante complesso immobiliare polifunzionale di recente costruzione con struttura prefabbricata in cemento armato precompresso e area uffici distinta composto da un piano seminterrato e due piani fuori terra su un lotto con destinazione artigianale/commerciale di circa 10000 mq,
Possibilità fare un ampliamento su un lotto edificabile limitrofo alla struttura.
Per informazioni solo in studio.
TRATTATIVA RISERVATA


Si intende precisare che gli indirizzi presenti negli annunci non sono identificativi dell´ubicazione precisa dell´immobile,
danno un riferimento solo generico della zona al cliente che ricerca, al fine di tutelare la privacy e riservatezza del venditore.
Per visionare l´immobile o per ricevere ulteriori informazioni contattateci senza impegno -
Le nostre sedi : Montebelluna (TV) - Maser (TV) - Conegliano (TV) - Pieve di Soligo (TV) - Maerne di Martellago (VE).
Classe Energetica: G - IPE: 0.00kWh/mq anno

  • PropostaOffro
  • ContrattoVendita
  • Prezzo-
  • Vani9
  • Numero piani2
  • Mq giardino10000
  • Mq totali1800
  • Classe energeticaG
  • StatoBuono
  • AscensoreSi
  • Tipo costruzioneCommerciale
  • RiscaldamentoAutonomo
  • ProvinciaTreviso
  • ComuneFregona
  • Data21-08-2025 05:14:52
  • CodiceEA-4D407A