affitto Corso XXI Gennaio monolocale 140mq

1.200,00 €
0 Piace
0 Piace

Dati annuncio : Affitto affitto, Vallefoglia

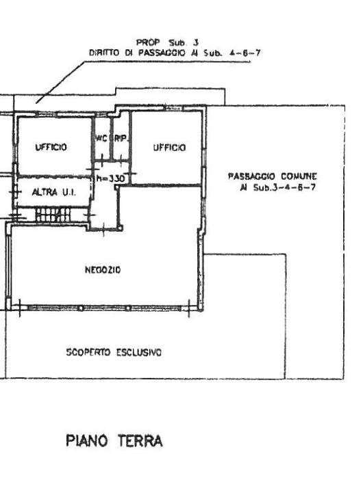
NEGOZIO MONTECCHIO In posizione esclusiva, proponiamo in AFFITTO negozio di 140 mq circa più 80 mq di deposito. Impiantistica a norma ,completo di parcheggio esclusivo. EURO 1.200 (Classe energetica: F IPE 145,00: kWh\m2 anno) Rif. SAN9
CLASSE ENERGETICA: F 145 kWh/m2 a

Accessori:
Doppi Vetri, Ingresso Indipendente, Rete Dati

  • PropostaOffro
  • ContrattoAffitto
  • Prezzo1.200,00 €
  • Vani1
  • Mq totali140
  • Bagni1
  • Posti auto4
  • Classe energeticaF
  • Classe energetica (ipe)145.0
  • AscensoreNo
  • RiscaldamentoAutonomo
  • AccessoriDoppi vetri, ingresso indipendente, rete dati
  • PortineriaNo
  • ProvinciaPesaro e urbino
  • ComuneVallefoglia
  • IndirizzoCorso xxi gennaio
  • Data18-08-2025 06:37:55
  • CodiceEA-09914A
Real office serv. imm.
Piazza Della Repubblica 2 - Vallefoglia