Appartamento 250mq

Dati annuncio : Vendita Appartamento, Ragusa
La Pronto Casa Group vende, in zona via Carducci, interessante struttura indipendente, su più livelli, per complessivi 250 mq circa. La vendita può riferirsi anche al singolo piano, il 3° ed il 4° verranno ceduti in unica soluzione.
La richiesta prezzo è in funzione dell´ unità scelta.
CARATTERISTICHE PRINCIPALI:
L´ immobile è in fase di ristrutturazione e completamento;
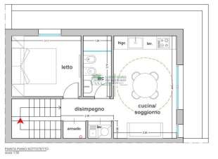
ogni livello, di circa 50 mq, comprende una zona living con cucina a vista, una camera matrimoniale con cabina, una cameretta ed un servizio con box doccia
DOTAZIONI:
- pavimentazione in ceramica effetto parquet
- infissi a taglio termico
- riscaldamento autonomo per singola unità
PERTINENZE :
ogni piano è dotato di balconi su esposizione angolare
il piano mansardato, con distribuzione interna diversa, dispone di terrazzino
L´ offerta è rivolta a quanti vogliono investire in un ambito di notevole interesse urbanistico e commerciale, anche in previsione dell´ imminente avvio della nuova stazione dei pullman ubicata a pochissima distanza.
Possibilità di acquisto anche allo stato rustico.
Per ulteriori info contattare l´ Agenzia 1 di Ragusa al n° 0932 257603 oppure collegati su nostro sito
- PropostaOffro
- ContrattoVendita
- Prezzo10,00 €
- Mq totali250
- Camere2
- Bagni1
- CucinaCucina a vista
- RiscaldamentoAutonomo
- Tipologia immobileAppartamento
- ProvinciaRagusa
- ComuneRagusa
- Data12-09-2025 05:09:17
- CodiceEA-EEA05A