Appartamento 5 vani 120mq

Dati annuncio : Vendita Appartamento, Lucca
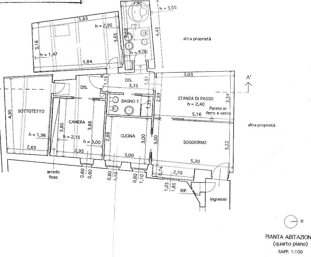
CENTRO STORICO. Fascinoso appartamento mansardato, sito all´ultimo piano di palazzo storico confortato da ascensore. E´ ristrutturato con finiture di qualità e si compone di ampio soggiorno con camino e soppalco, cucina completa di mobilia ed elettrodomestici nuovi, due camere, ampio bagno, stanza sauna con doccia, ripostiglio-lavanderia. Aria condizionata che fa anche da inverter caldo/freddo. Classe energetica G. Ipe 350 kWh/mq. anno.
HISTORICAL CENTRE. Charming bright flat on the last floor of a historical palace with the lift. Restored in the typical Tuscan style, consists of a large living room with a mezzanine usable as a study, kitchen with new furniture included, two bedrooms, a bathroom, a sauna room with shower, a storage room. Energy class G. Ipe 350 kWh/mq. anno.
- PropostaOffro
- ContrattoVendita
- Prezzo400.000,00 €
- Vani5
- Mq totali120
- Camere2
- Bagni1
- Classe energeticaG
- Classe energetica (ipe)175
- Classe energetica (unità di misura)Kwh/m²a
- StatoRistrutturato
- CucinaCucina abitabile
- Tipologia immobileAppartamento
- ProvinciaLucca
- ComuneLucca
- Data18-08-2025 05:21:08
- CodiceEA-FC7878