Appartamento 5 vani 142mq

Dati annuncio : Vendita Appartamento, Bolano
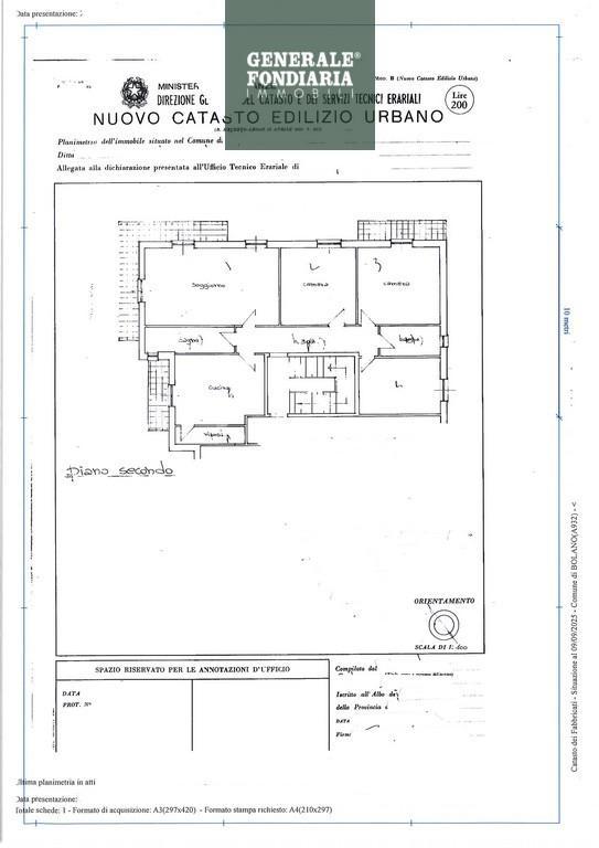
-Rif.5390- NOSTRA ESCLSUIVA. In una posizione comoda, proponiamo un appartamento di metratura importante tutto su un piano.
Inserito al secondo ed ultimo piano di una palazzina di poche unità, senza ascensore ma con scale basse e agevoli, l’immobile unisce praticità e vivibilità a spazi ampi e ben distribuiti.
L’ingresso accompagna in un soggiorno doppio, ambiente luminoso e accogliente, con accesso diretto al balcone.
A seguire, una cucina abitabile di generose dimensioni, anch’essa servita da balcone e arricchita da un comodo ripostiglio/dispensa, perfetto per mantenere ordine e funzionalità nella vita quotidiana.
Un corridoio conduce alla zona notte, composta da due camere matrimoniali di una con balcone, una cameretta e due bagni entrambi finestrati, uno con vasca l´altro con doccia.
Gli ambienti risultano ben esposti e ariosi, garantendo comfort e privacy.
La casa è già abitabile, libera subito e quindi senza tempi di attesa per la consegna.
Dotata di riscaldamento autonomo, la proprietà offre inoltre la possibilità di valutare una trattativa sul prezzo.
L´indirizzo sull´annuncio è approssimativo.
Per visionare l´immobile contattateci al 0187939990 3885710341 saremo lieti di fissare un appuntamento. Generale Fondiaria Immobili, Ceparana Via Italia 34/36
- PropostaOffro
- ContrattoVendita
- Prezzo218.000,00 €
- Vani5
- Mq totali142
- Camere3
- Bagni2
- Classe energeticaG
- AscensoreNo
- CucinaCucina abitabile
- RiscaldamentoAutonomo
- Tipologia immobileAppartamento
- ProvinciaLa spezia
- ComuneBolano
- Data11-09-2025 06:06:48
- CodiceEA-568DD7