Appartamento 6 vani 175mq

Dati annuncio : Vendita Appartamento, Palermo
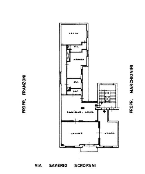
La Punto Casa Virga è lieta di proporre in vendita un appartamento in una delle zone residenziali più richieste di Palermo, a pochi passi da Piazza Don Bosco e dal Viale della Libertà, di 175 mq, situato al civico 27 di via Saverio Scrofani. L’immobile si distingue per la sua distribuzione funzionale e gli ambienti generosi, ideali per famiglie o per chi desidera vivere in un contesto tranquillo ma centrale.
La proprietà è così composta:
- Doppio ingresso;
- Ampio salone con balcone;
- Stanza da pranzo con cucina a vista;
- Due camere da letto spaziose;
- Due servizi igienici;
- Zona lavanderia.
L’appartamento si trova in un contesto ben servito da attività commerciali, scuole, mezzi pubblici e aree verdi, garantendo comfort e praticità nella vita quotidiana.
Soluzione ideale per chi cerca una residenza elegante in una delle aree più prestigiose della città, possibilità anche di frazionamento per creare studio e abitazione.
Per maggiori informazioni contattaci allo 091334664 o su whatsapp cliccando il seguente link: (https://bit.ly/WA_PuntoCasaVirga)
- PropostaOffro
- ContrattoVendita
- Prezzo375.000,00 €
- Vani6
- Mq totali175
- Camere2
- Bagni2
- Classe energeticaG
- CucinaCucina abitabile
- Tipologia immobileAppartamento
- ProvinciaPalermo
- ComunePalermo
- Data05-12-2025 05:08:50
- CodiceEA-9A1E62











