Appartamento 7 vani 200mq

Dati annuncio : Vendita Appartamento, Firenze
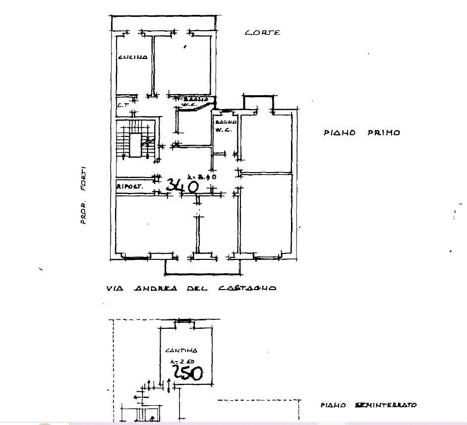
Vendesi in via Andrea del Castagno appartamento di 200 mq con tre balconi ,oltre due cantine al piano interrato . Area residenziale adiacente il Ponte al Pino , perfettamente collegato dai mezzi pubblicia ridosso di tutti i principali servizi , grande appartamento composto da n 4 camere -doppio salone -doppi servizi tre balconi oltre a due cantine posto al primo piano con ascensore. Termo autonomo Classe energetica G-124,70 kwh-m2a rif 894 TEL 334/2463709 055/0457970.
Casaexpress immobiliare è un´agenzia situata nel centro storico di Firenze ,che si distingue per professionalità e serietà nel campo delle locazioni e compravendite immobiliari . Soddisfiamo in tempi rapidi ogni esigenza della nostra clientela. Contatta l´Agenzia con il servizio ´´Invia Richiesta´´. L´agenzia offre servizi di assistenza ai propri clienti nella consulenza sull´investimento immobiliare, si affianca della collaborazione di validi professionisti per la relazione tecnica redatta da un tecnico iscritto all´ albo necessaria al trasferimento perizia energetica (IPE) assistenza fino al rogito notarile , visure catastali richiesta documentazione catastale, notarile e condominiale stesura della perizia estimativa consulenze
- PropostaOffro
- ContrattoVendita
- Prezzo800.000,00 €
- Vani7
- Mq totali200
- Camere1
- Bagni1
- Balconi3
- Classe energeticaG
- Classe energetica (ipe)1247
- Classe energetica (unità di misura)Kwh/m²a
- AscensoreSi
- CucinaCucina abitabile
- Tipologia immobileAppartamento
- ProvinciaFirenze
- ComuneFirenze
- Data24-07-2025 05:23:51
- CodiceEA-B5B92D