Appartamento bilocale 75mq

745.000,00 €
0 Piace
0 Piace

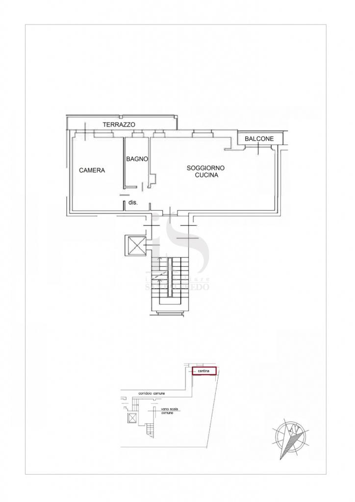
Appartamento ristrutturato in vendita a Milano, zona Arena - Via Maggi, 75 mq, secondo piano con ascensore In via Maggi, nel cuore della zona Arena a Milano, proponiamo in vendita un appartamento di 75 mq, ristrutturato nel 2014 e situato al secondo piano di un palazzo signorile edificato negli anni ´60, dotato di ascensore e servizio di portineria attivo tutto il giorno. L´immobile si distingue per la luminosità degli ambienti, grazie all´esposizione a sud che garantisce luce naturale durante tutta la giornata. La zona giorno è ampia, ariosa e ben organizzata, con accesso a un balcone vivibile. La cucina è moderna, attrezzata con un´isola centrale e inclusa nel prezzo, così come l´intero arredo attualmente presente nell´appartamento: una soluzione ideale per chi cerca una casa pronta da vivere, senza dover affrontare ulteriori costi o tempistiche per l´allestimento degli interni. Un comodo disimpegno ospita armadiature su misura, utili come spazio di servizio. Il bagno è ampio, con una elegante doccia in cristallo. La camera matrimoniale è generosa nelle dimensioni e dotata di un terrazzo privato, perfetto per creare uno spazio esterno riservato. Completano la proprietà una cantina, aria condizionata in tutti gli ambienti, pavimenti in parquet e finiture curate in ogni dettaglio. Il riscaldamento è centralizzato e le spese condominiali mensili ammontano a circa 300 euro, comprensive di riscaldamento e servizio di portineria. Tra i vantaggi di questa proposta, la presenza di arredi completi consente di ridurre notevolmente tempi e costi per l´ingresso in casa. È una soluzione ideale per chi cerca una prima abitazione confortevole e funzionale, ma anche per chi desidera fare un investimento in una zona ben servita e ad alta richiesta. Per maggiori informazioni o per fissare una visita, siamo a disposizione tramite telefono o WhatsApp 0396908137 - SC9460980

  • PropostaOffro
  • ContrattoVendita
  • Prezzo745.000,00 €
  • Vani2
  • Numero piani6
  • Piano2
  • Mq totali75
  • Bagni1
  • Balconi1
  • Terrazzi1
  • Classe energeticaC
  • Classe energetica (ipe)97,63 kwh/m2
  • StatoRistrutturato
  • AscensoreSi
  • CucinaAngolo cottura
  • GiardinoCondominiale
  • CantinaSi
  • RiscaldamentoCentralizzato
  • ArrediSi
  • BoxNo
  • Spese condominiali3600
  • Cadenza spese condominialiAnnuali
  • ProvinciaMilano
  • ComuneMilano
  • Data20-09-2025 05:38:44
  • CodiceEA-BCCA2F