Appartamento monolocale 53mq

Dati annuncio : Vendita Appartamento, Milano
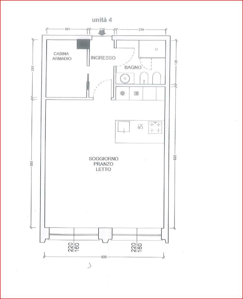
In Via dei Gracchi, nel cuore della zona Lenti a Milano, proponiamo in vendita un ampio monolocale di 53 m² situato al piano rialzato di un elegante complesso residenziale di circa 25 appartamenti totalmente ristrutturati.
L’intero stabile è frutto di un’accurata riqualificazione da ex uffici ad abitazioni, con attenzione ai dettagli e alle finiture moderne. L’appartamento è quasi ultimato: sono stati completati i pavimenti, i bagni piastrellati con sanitari nuovi, e tutti gli impianti elettrici e idraulici.
La distribuzione interna è ottimale e offre spazi funzionali:
• una zona giorno/notte ampia e luminosa,
• un bagno cieco elegantemente rifinito,
• e una comoda cabina armadio/ripostiglio.
L’immobile è visitabile da subito e rappresenta una soluzione ideale per investimento o per single/professionisti alla ricerca di un contesto nuovo e moderno in una delle aree più servite di Milano.
- PropostaOffro
- ContrattoVendita
- Prezzo380.000,00 €
- Vani1
- Mq totali53
- Camere1
- Classe energeticaA1
- Classe energetica (ipe)3356
- Classe energetica (unità di misura)Kwh/m²a
- CucinaCucina a vista
- Tipologia immobileAppartamento
- ProvinciaMilano
- ComuneMilano
- Data11-10-2025 06:15:21
- CodiceEA-E438F0