Appartamento quadrilocale 100mq

Dati annuncio : Vendita Appartamento, Trapani
Progetto Casa Agenzia Immobiliare dell’architetto Roberto Grassi, propone la vendita di un appartamento posto al quarto piano di un condominio di complessivi 6 piani ubicato nella Via Nino Bixio, zona centrale in prossimità dei principali servizi, scuole, supermercati, farmacie e distante pochi metri dal lungomare Dante Alighieri e dalla centralissima Via Fardella
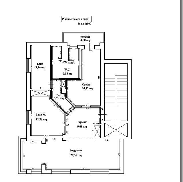
L’appartamento ha un ingresso su ampio salone, comunicante con cucina e annessa veranda - lavanderia. La zona notte è disimpegnata dal resto dell’appartamento ha due camere da letto ed un grande e comodo bagno con vasca e doccia.
Questo appartamento inoltre rappresenta un ottimo investimento se stai pensando di acquistare una casa già locata, o se non hai necessità di abitare sin da subito il tuo immobile in quanto lo stesso è attualmente locato con regolare contratto con canone di affitto annuo pari ad €.8.400,00
Recentemente sono stati eseguiti lavori di ristrutturazione che hanno previsto il rifacimento dell’impianto idrico ed elettrico, del bagno e della cucina. L’appartamento è totalmente pavimentato con parquet.
La superficie catastale dell’appartamento è di 110 metri quadrati
Spese condominiali pari ad €.85,00/mese
Il prezzo della vendita è pari ad €.140.000,00
Classe Energetica “F”
Posto auto in area condominiale recintata chiusa con cancello automatizzato
Per maggiori informazioni possono essere assunte presso la sede dell’Agenzia in Via Alcamo 146 – angolo Via Milo chiamando il 3351253969
- PropostaOffro
- ContrattoVendita
- Prezzo140.000,00 €
- Vani4
- Mq totali100
- Camere3
- Bagni1
- Classe energeticaF
- CucinaCucina abitabile
- Tipologia immobileAppartamento
- ProvinciaTrapani
- ComuneTrapani
- Data10-07-2025 05:05:45
- CodiceEA-28417D