Appartamento quadrilocale 101mq

Dati annuncio : Vendita Appartamento, Cesana Torinese
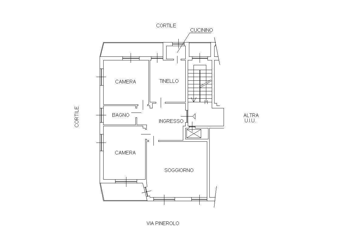
In Cesana Torinese, proponiamo in vendita un ampio trilocale situato in una posizione centrale, a pochi passi dal Comune e comodo a tutti i servizi. Questo appartamento è situato in una palazzina dotata di ascensore, con affacci panoramici che dominano la valle e offrono una splendida vista sullo Chaberton e su Via Pinerolo.
L´immobile si compone di un ampio ingresso, un tinello con cucinino, un ampio salone doppio con camino, due grandi camere da letto e un bagno. La proprietà include anche un posto auto coperto di 21 mq adiacente alla cantina, accessibile comodamente dall´ascensore, e una cantina separata. Si segnala che l´appartamento necessita di alcuni lavori di ristrutturazione, in particolare per il bagno, il cucinino, gli impianti elettrici, la lucidatura dei pavimenti e la decorazione. Tuttavia, il prezzo offerto è molto interessante proprio in considerazione di questi interventi necessari.
Grazie alla disposizione degli spazi, è possibile ricavare due appartamenti distinti, rendendo questa una soluzione ideale sia per famiglie sia per investitori. Classe energetica APE F.
Per informazioni chiamare: BIMAR S.A.S. TEL. 0122 897887 - 3425269794 E-MAIL: [email protected]
- PropostaOffro
- ContrattoVendita
- Prezzo170.000,00 €
- Vani4
- Mq totali101
- Camere3
- Bagni1
- Classe energeticaF
- Classe energetica (ipe)25954
- Classe energetica (unità di misura)Kwh/m²a
- CucinaCucinotto
- Tipologia immobileAppartamento
- ProvinciaTorino
- ComuneCesana torinese
- Data18-08-2025 05:21:08
- CodiceEA-B2BF78