Appartamento quadrilocale 104mq

Dati annuncio : Vendita Appartamento, Follo
-Rif.5322- proponiamo in vendita a Piana Batolla, nel comune di Follo, un ampio appartamento situato in una posizione centrale ma tranquilla, perfetto per chi cerca spazi generosi e una casa pronta per essere abitata senza interventi importanti.
L´appartamento si trova al primo piano di una palazzina di sole 14 unità abitative, un contesto residenziale che garantisce riservatezza e tranquillità, pur essendo vicino ai servizi.
L’assenza dell’ascensore non rappresenta un problema, grazie a una scala agevole con pochi gradini bassi che rendono l’accesso comodo e pratico.
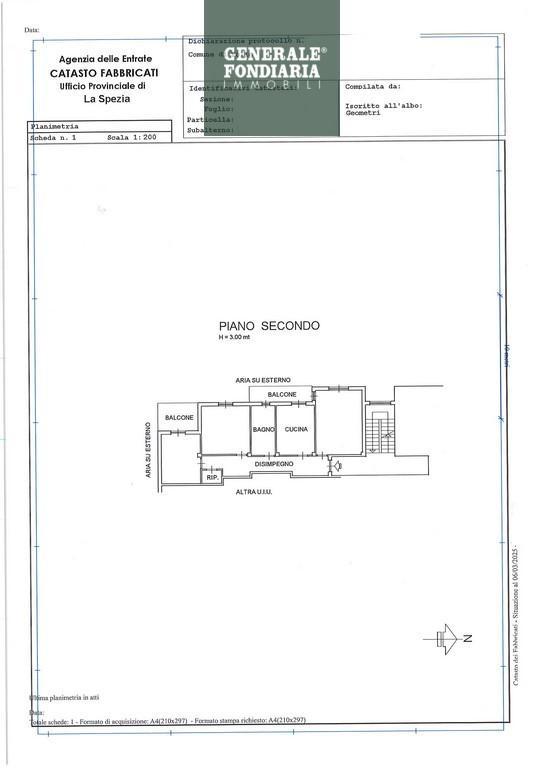
Gli spazi interni si sviluppano su un unico livello per un totale di 104 metri quadri, offrendo ambienti ampi e ben distribuiti.
L’ingresso si apre su un grande disimpegno che conduce alla zona giorno, composta da un soggiorno luminoso con accesso a una terrazzina abitabile, perfetta per godersi momenti all’aperto, e da una cucina separata, anch’essa con uscita sulla stessa terrazzina.
La zona notte è ben suddivisa e comprende una spaziosa camera matrimoniale, dotata di un balcone privato, una seconda camera da letto, un ripostiglio cieco, ideale come spazio aggiuntivo per riporre oggetti, e un bagno finestrato.
L’esposizione della casa garantisce un’ottima luminosità durante tutto il giorno, mentre gli infissi in legno con doppio vetro assicurano isolamento termico e acustico.
Il riscaldamento è centralizzato con gestione autonoma.
Questa casa è già libera e pronta per essere abitata immediatamente.
Non necessita di lavori importanti, è sufficiente portare i propri mobili per renderla accogliente secondo il proprio stile e le proprie esigenze.
L´indirizzo sull´annuncio è approssimativo.
Per visionare l´immobile contattateci al 0187 939990 345 6023380 saremo lieti di fissare un appuntamento. Generale Fondiaria Immobili, Ceparana Via Italia 34/36.
- PropostaOffro
- ContrattoVendita
- Prezzo85.000,00 €
- Vani4
- Mq totali104
- Camere2
- Bagni1
- Balconi1
- Classe energeticaG
- CucinaCucina abitabile
- Tipologia immobileAppartamento
- ProvinciaLa spezia
- ComuneFollo
- Data02-09-2025 05:05:05
- CodiceEA-3E6CB1