Appartamento quadrilocale 132mq

Dati annuncio : Vendita Appartamento, Cesenatico
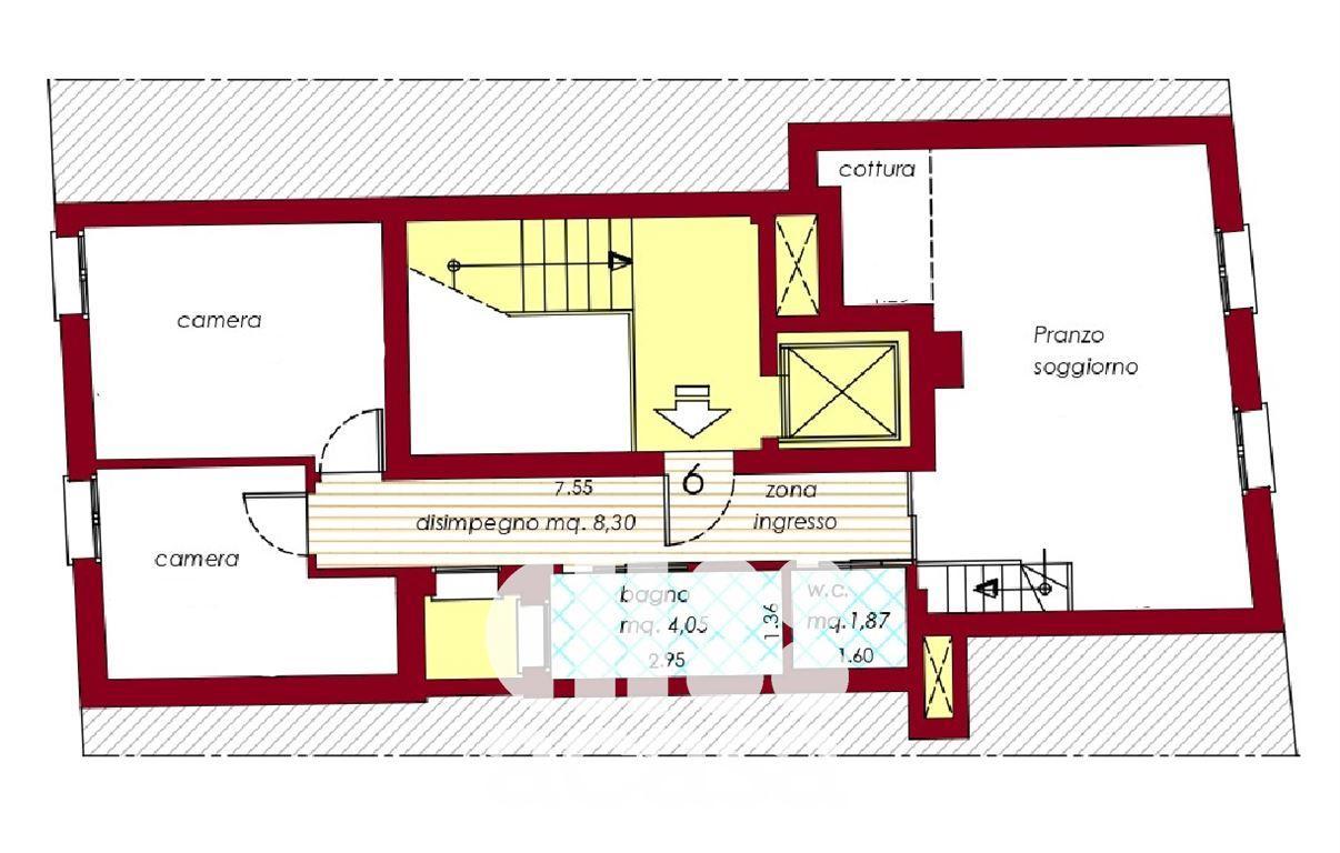
CESENATICO - PORTO CANALE, su uno degli scorci più fotografati e suggestivi della Riviera Adriatica, il Porto Canale di Cesenatico, abbiamo il piacere di proporvi in esclusiva un complesso immobiliare composto da varie tipologie di appartamenti. L´ appartamento proposto si trova al secondo piano, è composto da luminoso soggiorno con angolo cottura e un doppio affaccio sul caratteristico Porto Canale Leonardesco, due camere da letto, doppi servizi ed un comodo soppalco. E´ servito da ascensore che lo collega fino al piano interrato dove abbiamo una spaziosa cantina. Il garage di proprietà si trova a circa 300 metri in linea d´aria dall´appartamento, in comodo complesso interrato chiuso da cancello. Prenota ora il tuo appartamento da sogno in una cornice meravigliosa ! !
Per informazioni ACASA_Cesenatico, Viale Roma 22/24: Alex Bartolucci 366-1252033, tel. centralino 0547-1952930
Tutte le nostre proposte su ACASA.INFO
Le presenti informazioni non costituiscono elemento contrattuale.
- PropostaOffro
- ContrattoVendita
- Prezzo560.000,00 €
- Vani4
- Mq totali132
- Camere2
- Bagni2
- Classe energeticaC
- Classe energetica (ipe)7888
- Classe energetica (unità di misura)Kwh/m²a
- AscensoreSi
- CucinaAngolo cottura
- Tipologia immobileAppartamento
- ProvinciaForli-cesena
- ComuneCesenatico
- Data28-06-2025 06:01:18
- CodiceEA-D6A773