Appartamento quadrilocale 150mq

Dati annuncio : Vendita Appartamento, Rovellasca
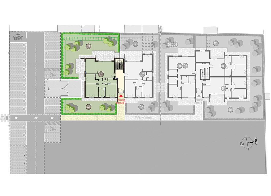
In tranquilla zona residenziale, proponiamo in vendita elegante quadrilocale al piano terra, composto da luminoso soggiorno con angolo cottura, tre camere da letto, doppi servizi e comodi portici esterni.
Completano la proprietà un ampio giardino esclusivo di oltre 260 mq, ideale per momenti di relax all´aperto.
L’immobile è progettato per garantire un’elevata efficienza energetica, con classe energetica prevista non inferiore ad A3.
Se l’immobile non soddisfa le tue esigenze puoi inviarci una richiesta con un messaggio, anche WhatsApp, al numero di cellulare 331.3226375, sarà nostra premura offrirti un servizio a te dedicato. Per qualsiasi informazione puoi venirci a trovare a Saronno in via G.Ferrari n.21/C oppure contattarci ai n. 02/96718300.
Vuoi conoscere il reale valore del tuo immobile? Un consulente è a tua disposizione e potrà fornirti una relazione dettagliata sull’effettivo valore del tuo immobile basandosi su dati REALI di vendita.
Il presente annuncio ha valore indicativo e non costituisce elemento contrattuale.
NOTA: Si avvertono i Signori clienti che gli indirizzi inseriti all´interno dell´annuncio sono puramente indicativi e non rispecchiano la realtà.
Questa indicazione vuole essere un ausilio nell´indicazione della zona pur rispettando la Privacy dei venditori. Ulteriori chiarimenti possono essere forniti presso la nostra sede o telefonicament
- PropostaOffro
- ContrattoVendita
- Prezzo395.000,00 €
- Vani4
- Mq totali150
- Camere3
- Bagni2
- Classe energeticaA3
- Classe energetica (ipe)26
- Classe energetica (unità di misura)Kwh/m²a
- CucinaCucina a vista
- GiardinoPrivato
- Tipologia immobileAppartamento
- ProvinciaComo
- ComuneRovellasca
- Data27-06-2025 05:03:08
- CodiceEA-87F1AB