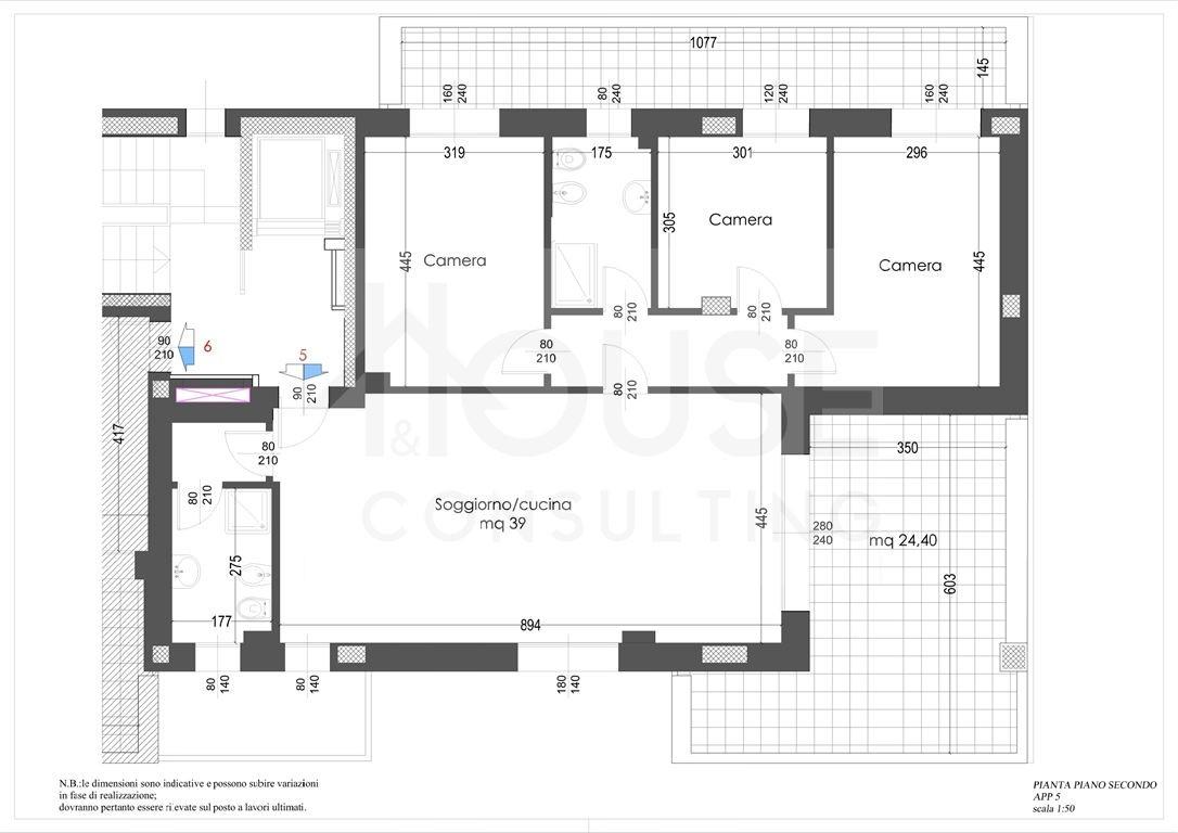
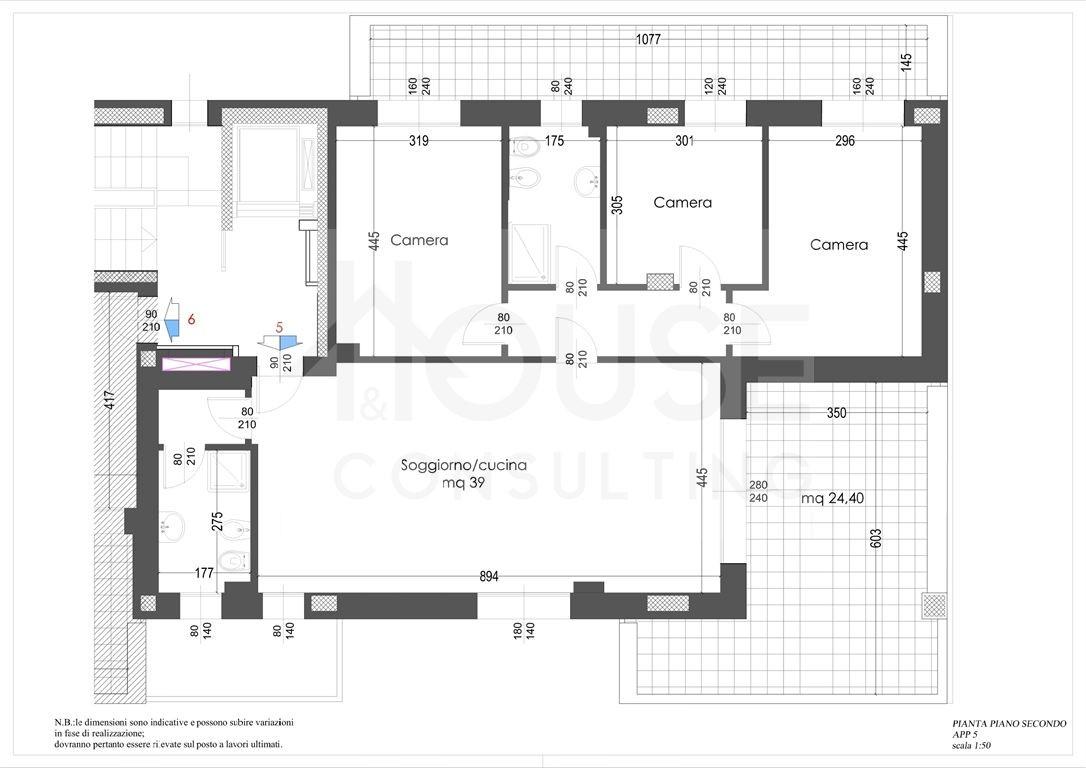
Appartamento quadrilocale 151mq

Dati annuncio : Vendita Appartamento, Monza
Rif. Appartamento 5
Appartamento al secondo piano di quattro locali con doppi servizi 151 mq, terrazzo coperto di 28 mq e balcone da 18 mq.
In elegante mini palazzina di 9 unità abitative, proponiamo appartamento con tripla esposizione, composto da:
- Ingresso
- Ampio salone/cucina da 46 mq con grande vetrata scorrevole e accesso diretto al terrazzo coperto
- Tripli servizi finestrati
- Tre comode camere servite da un’ampia balconata
Ampia disponibilità di personalizzazione degli interni grazie a un capitolato ricco e curato nei dettagli, con finiture di pregio come ceramiche di grandi formati ( fino a 90x90 ) o parquet in tutti gli ambienti.
Ogni residenza è progettata per offrire massimo confort abitativo e dotazioni tecnologiche innovative, quali:
- Riscaldamento a pavimento con termostato a gestione autonoma, predisposizione di impianto di ventilazione meccanica controllata.
- Predisposizione condizionamento e deumidificazione.
- Pannelli fotovoltaici per la produzione di energia elettrica.
- Tutte gli appartamenti sono dotati di serramenti certificati per il risparmio energetico con grandi vetrate scorrevoli, tapparelle elettriche e zanzariere.
Completa la soluzione la cantina e la possibilità di box singolo o doppio dotati di serranda automatica
Per ulteriori informazioni House&Consulting Arcore 0396012742 www.hcarcore.it
Le immagini sono fornite al solo scopo illustrativo e non costituiscono elemento contrattuale.
- PropostaOffro
- ContrattoVendita
- Prezzo640.000,00 €
- Vani4
- Mq totali151
- Camere3
- Bagni3
- Classe energeticaA+
- Classe energetica (ipe)15
- Classe energetica (unità di misura)Kwh/m²a
- CucinaCucina a vista
- BoxBox singolo
- Tipologia immobileAppartamento
- ProvinciaMonza e brianza
- ComuneMonza
- Data05-02-2026 06:04:54
- CodiceEA-CB1F19











