Appartamento quadrilocale 155mq

Dati annuncio : Vendita Appartamento, Lecco
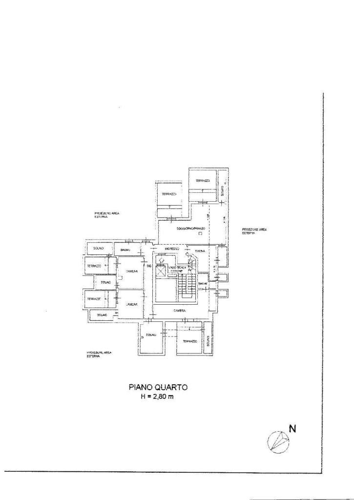
Lecco appartamento località Castello, nelle vicinanze del centro e comodo ad ogni servizio di prima necessità, la casa che proponiamo è un quadrilocale di 155 mq escluso aree esterne, il contesto è unico elegante e riservato, la vista è a dir poco spettacolare regalandoci scorci di naturale bellezza il tutto immerso nel parco condominiale con alberi secolari. La soluzione è composta da ingresso, accogliente soggiorno e sala da pranzo con affaccio sui due terrazzi a pozzo con esposizione a sud, la cucina è abitabile l´esposizione è a ovest, il disimpegno ci conduce nella zona notte dove troviamo il bagno con vasca, le due camere entrambi dotate di guardaroba e i relativi terrazzi a pozzo esposti a est, il locale lavanderia, e un´ulteriore camera con bagno e terrazzo con esposizione a nord. L´esclusività e l´unicità dell´abitazione signorile si trova al quarto e ultimo piano con ascensore ed è libero su quattro lati, a completare la soluzione l´ampio box, la cantina, e opzionale il doppio posto auto. Rif. VA 706
sito www.aziendeimmobili.it
SCOPRI IL VALORE DEL TUO IMMOBILE GRATUITAMENTE, https://www.aziendeimmobili.it/vendi-con-noi.html
- PropostaOffro
- ContrattoVendita
- Prezzo420.000,00 €
- Vani4
- Mq totali155
- Camere3
- Bagni2
- Classe energeticaG
- Classe energetica (ipe)33267
- Classe energetica (unità di misura)Kwh/m²a
- AscensoreSi
- CucinaCucina abitabile
- Tipologia immobileAppartamento
- ProvinciaLecco
- ComuneLecco
- Data25-08-2025 05:52:45
- CodiceEA-2D7BA8