Appartamento quadrilocale 162mq

Dati annuncio : Vendita Appartamento, Biassono
Le Terrazze di Via Turati – Rif. Appartamento 6A
Visita il nostro sito interattivo: www.terrazzeturati.it
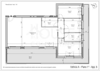
Al primo piano di una residenza esclusiva proponiamo un prestigioso appartamento di quattro locali con doppi servizi, per un totale di 162 mq, arricchito da un ampio terrazzo coperto di 50 mq.
L’abitazione, caratterizzata da doppia esposizione sud/ovest, si compone di:
- Ingresso
- Salone di 57 mq con tre grandi vetrate scorrevoli e accesso diretto al terrazzo
- Tre camere matrimoniali
- Doppi servizi
- Terrazzo coperto di 50 mq ideale per vivere gli spazi esterni
Comfort e dotazioni:
- Impianto di aria condizionata e deumidificazione
- Tapparelle elettriche
- Zanzariere
Ampia possibilità di personalizzazione degli interni grazie a un capitolato ricco e curato nei dettagli, con finiture di pregio: ceramiche di grande formato (fino a 90x90), parquet in tutti gli ambienti e materiali selezionati.
Per ulteriori informazioni:
House&Consulting Arcore – Tel. 039 6012742
www.hcarcore.it
Le immagini hanno scopo puramente illustrativo e non costituiscono elemento contrattuale.
- PropostaOffro
- ContrattoVendita
- Prezzo530.000,00 €
- Vani4
- Mq totali162
- Camere3
- Bagni2
- Classe energeticaA+
- Classe energetica (ipe)15
- Classe energetica (unità di misura)Kwh/m²a
- Tipo costruzioneDi prestigio
- CucinaCucina a vista
- TerrazzoSi
- Tipologia immobileAppartamento
- ProvinciaMonza e brianza
- ComuneBiassono
- Data08-05-2025 05:47:02
- CodiceEA-8AC330