Appartamento quadrilocale 80mq

Dati annuncio : Vendita Appartamento, Bolano
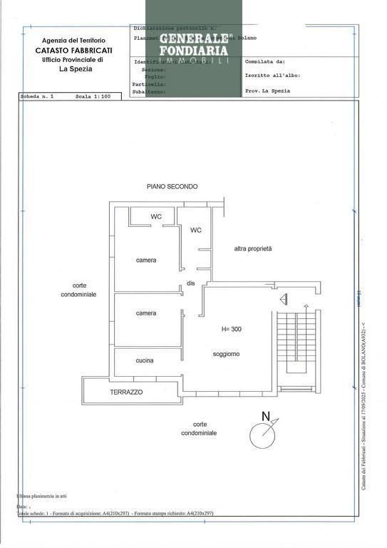
-Rif.5393- In pieno centro a Ceparana, a due passi da scuole, poste, supermercati e da tutti i principali servizi, ma al tempo stesso in posizione defilata e lontana dal traffico, proponiamo un appartamento ampio e luminoso, situato al secondo ed ultimo piano di una palazzina ben tenuta, con facciata recentemente ristrutturata.
L’ingresso si apre su un soggiorno accogliente e molto luminoso, impreziosito da doppie finestre, camino installato appena due anni fa e condizionatore. Dal soggiorno si accede alla cucina semi-abitabile, servita da un balcone di circa 9 mq.
La zona notte, anch’essa climatizzata, è composta da una spaziosa cameretta, una camera matrimoniale con bagno privato cieco ma completo di doccia, e da un secondo bagno finestrato con vasca e angolo lavanderia.
Completano la funzionalità della casa un piccolo ripostiglio e due comodi angoli soppalco sfruttati come ulteriori spazi contenitivi.
L’appartamento è stato oggetto di una ristrutturazione recente: il riscaldamento è autonomo a pavimento, gli infissi sono in PVC con doppio vetro e persiane nuove.
Incluso nel prezzo, vi è la possibilità di mantenere l’arredo completo, compresa la cucina con elettrodomestici, lavastoviglie e forno acquistati recentemente.
La proprietà gode inoltre di un giardino condominiale, con area barbecue a disposizione dei residenti, all’interno di una palazzina di sole 6 unità abitative.
L´indirizzo sull´annuncio è approssimativo.
Per visionare l´immobile contattateci al 0187939990 3885710341 saremo lieti di fissare un appuntamento. Generale Fondiaria Immobili, Ceparana Via Italia 34/36
- PropostaOffro
- ContrattoVendita
- Prezzo179.000,00 €
- Vani4
- Mq totali80
- Camere2
- Bagni2
- Balconi1
- CucinaCucina semi abitabile
- Tipologia immobileAppartamento
- ProvinciaLa spezia
- ComuneBolano
- Data18-09-2025 05:06:36
- CodiceEA-6522C1