Appartamento trilocale 105mq

Dati annuncio : Vendita Appartamento, Meda
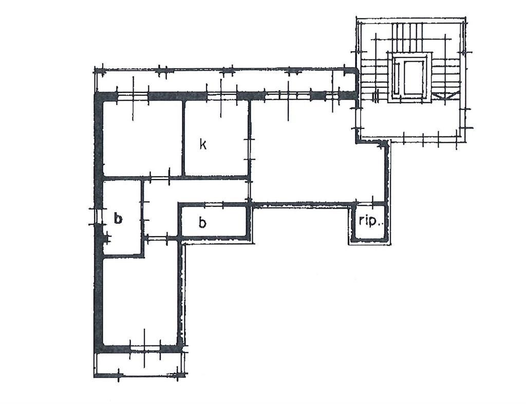
Zona centralissima a due passi dalla stazione, in contesto condominiale anni 90, splendido 3 locali di 105 mq composto da ampio soggiorno, cucina abitabile, entrambi i locali con uscita su di una balconata coperta di 11 mq, ripostiglio, disimpegno notte, 2 camere da letto di cui la matrimoniale con balcone e cameretta con uscita sulla balconata della zona giorno, doppi servizi. Cantina e box doppio in lunghezza compresi nel prezzo. Tripla esposizione Est - Ovest - Nord.
FINITURE: Ceramica monocottura nei bagni, parquet nel resto, cucina in gres ristrutturata 7 anni fa, serramenti in legno con doppio vetro, tapparelle e cancelletti di sicurezza, porte in legno, video citofono, tende da sole motorizzate e caldaia recentemente sostituita. Tutto in perfette condizioni. Libero subito. Rif. 120
- PropostaOffro
- ContrattoVendita
- Prezzo208.000,00 €
- Vani3
- Mq totali105
- Camere2
- Bagni2
- Classe energeticaE
- Classe energetica (ipe)1122
- Classe energetica (unità di misura)Kwh/m²a
- CucinaCucina abitabile
- BoxBox doppio
- Tipologia immobileAppartamento
- ProvinciaMonza e brianza
- ComuneMeda
- Data18-09-2025 05:06:36
- CodiceEA-56A230