Appartamento trilocale 109mq

Dati annuncio : Vendita Appartamento, Osnago
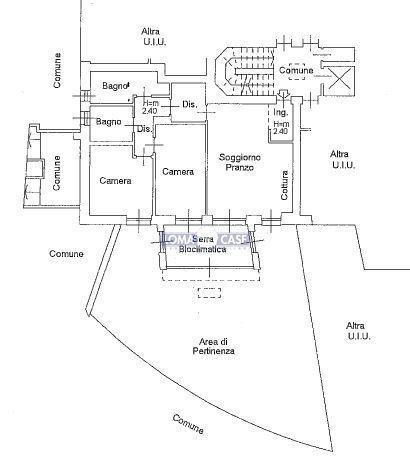
Osnago, in zona residenziale, verde e tranquilla, vicino a tutti i principali sevizi del paese ed in prossimità di stazione e tangenziale, in moderno e recente edificio denominato ´´Residenze del Dosso´´, proponiamo in vendita appartamento trilocale con esposizione a sud, con accesso sia dal condominio che da giardino di proprietà, costituito da ingresso, soggiorno con cucina a vista, due camere, due bagni con pertinenziali giardino finemente piantumato, serra bioclimatica e Cantina. Completano l´immobile un locale ad uso deposito mq. 24, con ingresso indipendente, ideale per piccolo ufficio o locale hobby posto al piano terreno ed un box triplo posto al piano seminterrato.
Le caratteristiche principali generali della costruzione che concorrono alla riduzione dei consumi sono le seguenti: ottimale orientamento dell’edificio per ottenere il massimo rendimento dell´energia solare; perfetto isolamento termico ed acustico; assenza di emissioni in atmosfera ´´Emissioni zero´´; pannelli fotovoltaici per la produzione energia elettrica delle parti comuni e pompa di calore, le serre bioclimatiche; gli impianti di ventilazione meccanica controllata con recupero di calore; il riscaldamento a pavimento con pannelli radianti a pavimento. Le ulteriori migliorie apportate nell´immobile oggetto di vendita da parte dell´attuale proprietario sono le seguenti: impianto di telecamere gestito da remoto con applicazione sul telefono, impianto wi -fi, impianto d´irrigazione suddiviso in quattro zone, impianto d´allarme, tenda da sole esterna, basculanti elettriche, impianto elettrico gestito dalla domotica. Nei consumi condominiali annuali indicati nella proposta sono altresì ricompresi: consumo acqua, riscaldamento e raffrescamento, spese di pulizia e giardino condominiale. Libero da febbraio 2026.
- PropostaOffro
- ContrattoVendita
- Prezzo290.000,00 €
- Vani3
- Mq totali109
- Camere2
- Bagni2
- Classe energeticaA
- Classe energetica (ipe)1772
- Classe energetica (unità di misura)Kwh/m²a
- CucinaCucina a vista
- GiardinoPrivato
- RiscaldamentoA pavimento
- Tipologia immobileAppartamento
- ProvinciaLecco
- ComuneOsnago
- Data23-09-2025 05:21:07
- CodiceEA-65D823