Appartamento trilocale 110mq

Dati annuncio : Vendita Appartamento, Milano
PIAZZALE SIENA / VIA PISANELLO
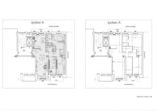
A due passi da Piazzale Siena, Via Pisanello 18/20, vendiamo in un palazzo completamente riqualificato dal punto di vista energetico e ristrutturato integralmente nelle parti comuni, ottavo piano, appartamento di mq 110. Lo stato di fatto dell´´appartamento è composto da: ingresso, ampio soggiorno, grande cucina abitabile con balcone, due camere da letto, bagno e ripostiglio. L´appartamento necessita di una ristrutturazione, ha la possibilità di creare la terza camera e la creazione di un secondo bagno. Stabile con servizio di portineria ed ascensore. Libero. Ubicato a pochi passi dai principali servizi che offre la zona tra i quali supermercati, negozi, bar, ristoranti. Nelle immediate vicinanze delle fermate dei mezzi di superficie quali la linea 63-80-90-98 e della metropolitana linea MM1 Gambara. Per maggiori informazioni o appuntamenti contattare CISE RE SRL [email protected] : https://e-book.hflip.co/pisanello18.
Rif. 9360
CISE RE - G.Mugnai & P.Cocchi
02.55191701
- PropostaOffro
- ContrattoVendita
- Prezzo545.000,00 €
- Vani3
- Mq totali110
- Camere2
- Bagni1
- Classe energeticaC
- Classe energetica (ipe)75
- Classe energetica (unità di misura)Kwh/m²a
- StatoRistrutturato
- CucinaCucina abitabile
- Tipologia immobileAppartamento
- ProvinciaMilano
- ComuneMilano
- Data31-07-2025 05:03:38
- CodiceEA-8F631D