Appartamento trilocale 110mq

Dati annuncio : Vendita Appartamento, Novate Milanese
NOVATE MILANESE - Via Giuseppe di Vittorio 45 - Proponiamo in vendita appartamento di ca. 110 mq posto al terzo piano di uno stabile di recente costruzione del 2023.
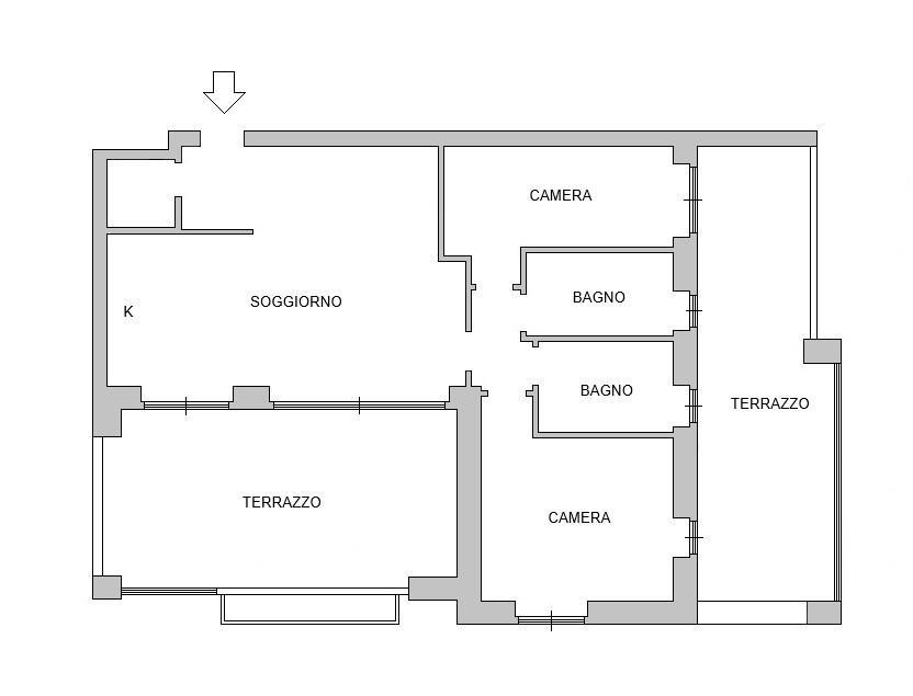
L´appartamento è composto da ingresso su ampio soggiorno con cucina a vista e accesso alla terrazza coperta (loggia), disimpegno che divide la zona notte composta da due camere da letto, doppi servizi e terrazza coperta (loggia) accessibile da entrambe le camere. Completa la proprietà una cantina di pertinenza e un box di ca. 18 mq all´interno dello stabile la cui richiesta è pari ad € 30.000,00.
L´immobile fa parte di uno stabile di nuova costruzione ed è dotato di tutti i comfort e impianti di ultima generazione quali impianto di riscaldamento centralizzato a pavimento con pompa di calore, impianto di climatizzazione e deumidificazione, infissi esterni con doppi vetri, tende oscuranti, porta blindata, impianto elettrico domotico, sistema VMC in tutti gli ambienti compresi i servizi, Classe Energetica A/4, pannelli solari condominiali.
- PropostaOffro
- ContrattoVendita
- Prezzo460.000,00 €
- Vani3
- Mq totali110
- Camere2
- Bagni2
- Classe energeticaA4
- Classe energetica (ipe)1943
- Classe energetica (unità di misura)Kwh/m²a
- StatoNuova costruzione
- CucinaCucina a vista
- RiscaldamentoCentralizzato
- Tipologia immobileAppartamento
- ProvinciaMilano
- ComuneNovate milanese
- Data29-08-2025 06:01:29
- CodiceEA-F525A3