Appartamento trilocale 115mq

Dati annuncio : Vendita Appartamento, Milano
RESIDENZE PALMIERI / STADERA - RIF. CT6 - Via Palmieri 46
Il complesso di Via Palmieri-Stadera reinterpreta i caratteri della Vecchia Milano, tipici della zona, in chiave contemporanea, affiancando alla storicità le più moderne dotazioni tecnologiche ed impiantistiche raggiungendo le migliori prestazioni della classe energetica A.
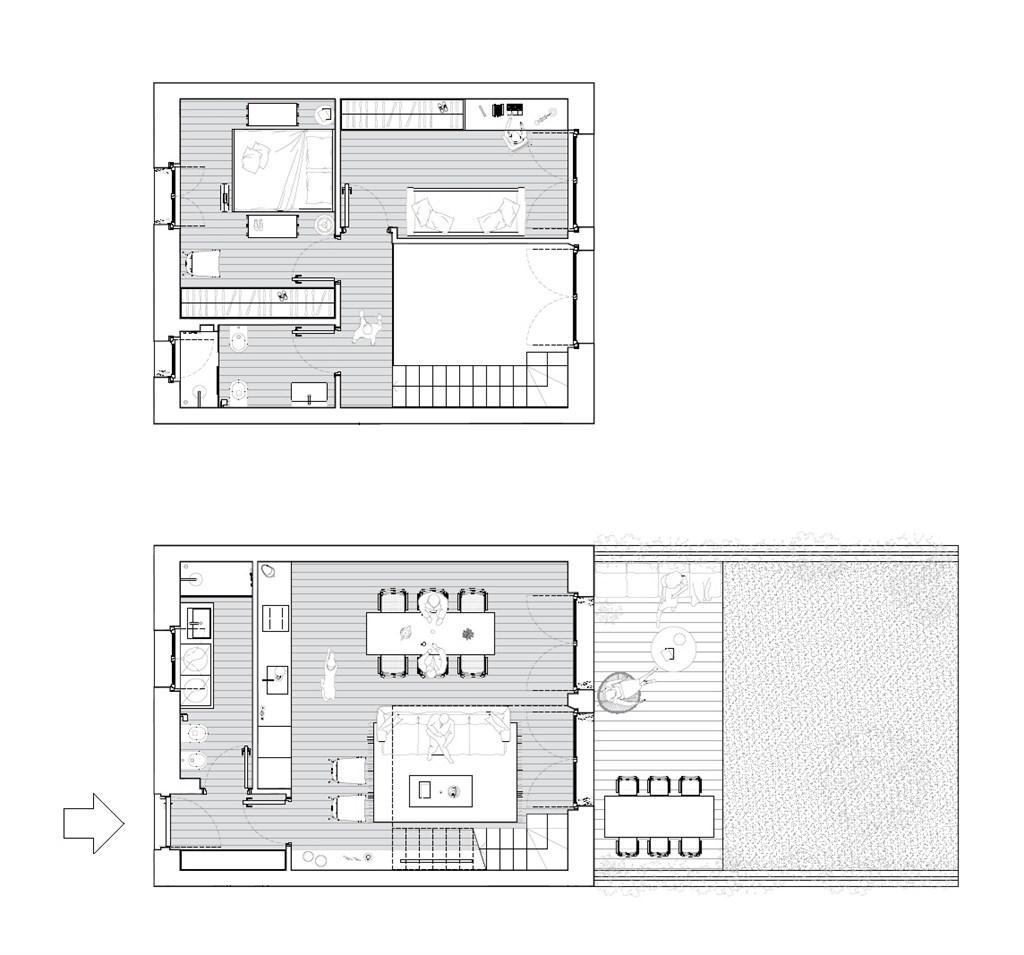
L´appartamento CT6 è una soluzione sita al piano terra con giardino di ca. 115 mq disposta su due livelli. Al piano terra troviamo la spaziosa zona living con cucina a vista dalla quale si accede al giardino privato e il bagno finestrato. Una comoda scala interna porta al primo piano dove è presente la zona notte composta da due camere da letto e il secondo bagno. Possibilità di acquisto box singolo o doppio a partire da € 40.000,00.
Gli edifici si raccolgono attorno ad un giardino condominiale dotato di spazi aggregativi quali: una pergola attrezzata con cucina all’aperto, dove vivere le giornate di sole e un’ampia sala comune interna dove ritrovarsi, lavorare, studiare, giocare a ping pong o semplicemente passare del tempo insieme per la festa dei bambini.
I materiali utilizzati sono quelli della tradizione: intonaci di varie densità e colorazioni, strutture metalliche per i terrazzi ed i ballatoi, pavimentazioni in pietra mista Rizzata (l’antica pavimentazione Lombarda realizzata con ciotoli di fiume), e sasso lavato.
Il quartiere Stadera, che prende il nome dall’antica cascina presente fin dal 1600 nella zona situata tra Via Palmieri e Via de Sanctis, conserva dei gioielli della cultura milanese come la chiesa di Santa Maria Annunciata di Chiesa Rossa e unisce la storicità e il carattere di Vecchia Milano alla modernità di un’area in continua crescita dove sono presenti luoghi di svago, parchi, locali e aree per bambini.
Consegna prevista per luglio 2027.
- PropostaOffro
- ContrattoVendita
- Prezzo607.000,00 €
- Vani3
- Mq totali115
- Camere2
- Bagni2
- Classe energeticaA1
- Classe energetica (ipe)30
- Classe energetica (unità di misura)Kwh/m²a
- CucinaCucina a vista
- GiardinoPrivato
- BoxBox singolo
- Tipologia immobileAppartamento
- ProvinciaMilano
- ComuneMilano
- Data30-09-2025 06:07:52
- CodiceEA-ED1EC1