Appartamento trilocale 123mq

Dati annuncio : Vendita Appartamento, Faenza
FAENZA – Appartamento su due livelli in palazzo storico ristrutturato con 2 camere e locali sottotetto
💶 Prezzo: € 330.000
All’interno di un prestigioso palazzo storico completamente ristrutturato con risanamento conservativo, proponiamo in vendita elegante appartamento disposto su due livelli, al secondo piano servito da ascensore, rifinito con materiali di pregio e completo di aria condizionata già installata.
Composizione interna:
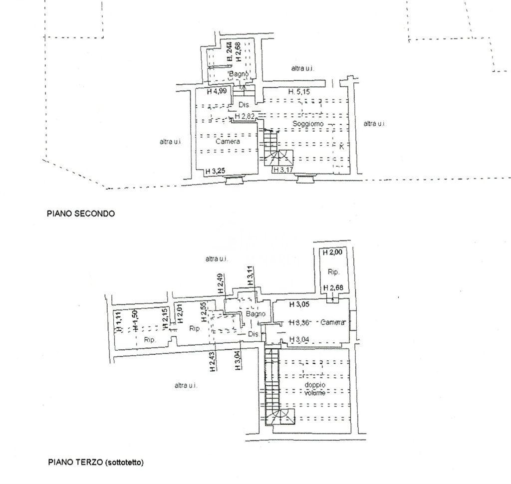
Primo livello: luminoso soggiorno con cucina a vista, una camera matrimoniale, un bagno moderno arredato con doccia;
Secondo livello: seconda camera doppia con annessa cabina armadio, secondo bagno completo di arredi e doccia, più due locali sottotetto ideali come studio o camera per ospiti.
Finiture e dotazioni:
pavimenti in listoni di legno pregiato in tutti gli ambienti;
infissi in legno con vetrocamera;
aria condizionata installata in ogni ambiente;
impianti nuovi e certificati;
classe energetica C.
🚗 Possibilità di acquisto posto auto privato nella corte interna.
📍 Soluzione esclusiva, ideale per chi cerca spazi versatili e finiture di alto livello in un contesto storico di prestigio, a due passi dal centro città.
- PropostaOffro
- ContrattoVendita
- Prezzo330.000,00 €
- Vani3
- Mq totali123
- Camere2
- Bagni2
- Classe energeticaC
- Classe energetica (ipe)70
- Classe energetica (unità di misura)Kwh/m²a
- StatoRistrutturato
- AscensoreSi
- Tipo costruzioneDi prestigio
- CucinaCucina a vista
- ArrediArredato
- Tipologia immobileAppartamento
- ProvinciaRavenna
- ComuneFaenza
- Data04-10-2025 05:08:29
- CodiceEA-524CA6