Appartamento trilocale 125mq

Dati annuncio : Vendita Appartamento, Santa Croce Camerina
In località Kaukana, ad appena 100 metri dalla spiaggia, Pronto Casa Group propone in vendita appartamenti in villa di nuova costruzione.
La posizione, oltre le rifiniture di ottima fattura, rendono queste villette di altissimo interesse per chi sta cercando una casa al mare moderna e completa di tutti i comfort, nella zona del Litorale Ibleo tra Marina di Ragusa e Punta Secca.
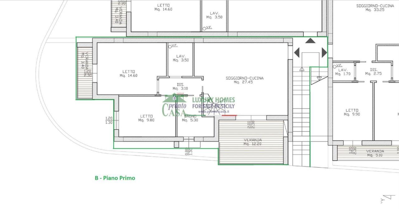
In questo annuncio descriviamo il Piano Primo della villetta contrassegnata con la lettera B.
Si tratta di un appartamento su due livelli, con un primo piano di circa 80 mq, composto internamente da una zona living con cucina a vista con veranda, due camere da letto di cui una balconata, un bagno ed una zona lavanderia. Al piano superiore una mansarda di circa 45 mq con terrazzo esposto a sud di ben 30 mq.
Sotto la scala c´è un vano ripostiglio a disposizione.
Ogni appartamento verrà dotato di impianto fotovoltaico, climatizzatori, piscina idromassaggio, infissi in alluminio a taglio termico con vetro camera ad argon.
Contattaci subito allo 0932 239865 per maggiori informazioni, oppure visita il nostro sito internet ufficiale.
- PropostaOffro
- ContrattoVendita
- Prezzo300.000,00 €
- Vani3
- Mq totali125
- Camere2
- Bagni1
- Classe energeticaA4
- StatoNuova costruzione
- CucinaCucina a vista
- TerrazzoSi
- GiardinoPrivato
- Tipologia immobileAppartamento
- ProvinciaRagusa
- ComuneSanta croce camerina
- Data18-08-2025 05:21:08
- CodiceEA-F28B5C