Appartamento trilocale 65mq

165.000,00 €
0 Piace
0 Piace

Dati annuncio : Vendita Appartamento, San Benedetto del Tronto

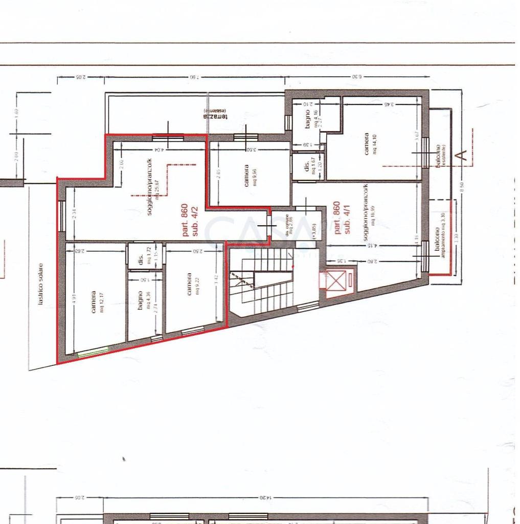
San Benedetto del Tronto - Centro - in vendita appartamento trilocale di nuova realizzazione. L´appartamento fa parte di una piccola palazzina in fase di totale riqualificazione, il cui intervento volto a rifare completamente la struttura presente con un insieme di lavori che portano ad un organismo edilizio in tutto o in parte diverso. Traversa di Viale De Gasperi, appartamento posto al piano primo con ascensore della superficie di 65 mq circa composto da: ingresso su disimpegno, soggiorno/pranzo servito da balcone, una camere matrimoniale, una cameretta ed un bagno con finestra. L´appartamento di prossima ristrutturazione pu essere personalizzato con materiali da scegliere su un´ ampio capitolato. Completa la propriet una piccola cantina. L´appartamento posizionato in zona servitissima, a poca distanza dal centro e dal mare - SC9307904

  • PropostaOffro
  • ContrattoVendita
  • Prezzo165.000,00 €
  • Anno2025
  • Vani3
  • Numero piani3
  • Piano1
  • Mq terrazzo16
  • Mq totali65
  • Bagni1
  • AscensoreNo
  • CantinaSi
  • RiscaldamentoAutonomo
  • ArrediNo
  • BoxNo
  • Cadenza spese condominialiAnnuali
  • ProvinciaAscoli piceno
  • ComuneSan benedetto del tronto
  • Data21-08-2025 05:22:56
  • CodiceEA-BDB93E
Casa pi
Via Val Tiberina N. 140 - San Benedetto Del Tronto