Appartamento trilocale 75mq

Dati annuncio : Vendita Appartamento, Fonte Nuova
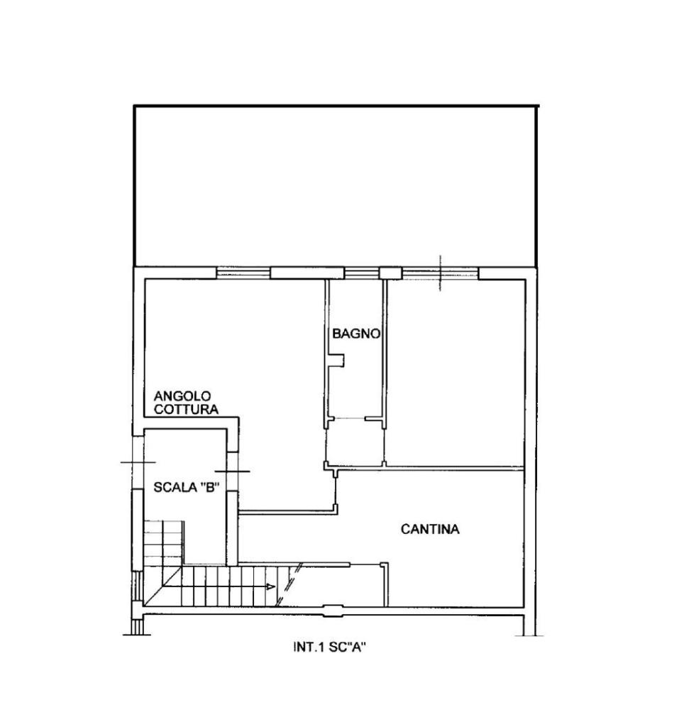
FONTE NUOVA - loc. Tor Lupara - Proponiamo in vendita appartamento di circa 75 mq sito al primo terra di una piccola palazzina in cortina, così composto: ingresso, soggiorno con angolo cottura, disimpegno, camera da letto, altra camera (accatastata cantina), 2 bagni (uno cieco e uno con finestra) e giardino parte pavimentato di 60 mq. Un posto auto scoperto nel cortile condominiale. L´immobile si trova in buone condizioni, infissi in Pcv con doppio vetro, riscaldamento autonomo. Attualmente locato e libero a febbraio 2026 (anche prima appena l´inquilino attuale trova un´altra sistemazione). Prezzo € 115.000 - Per ulteriori informazioni potete contattare la Bea Immobiliare allo 06/90018074 - 06/90018696 - 327/0411867 oppure [email protected]
- PropostaOffro
- ContrattoVendita
- Prezzo115.000,00 €
- Vani3
- Mq totali75
- Camere2
- Bagni2
- Classe energeticaG
- Classe energetica (ipe)175
- Classe energetica (unità di misura)Kwh/m²a
- CucinaAngolo cottura
- GiardinoPrivato
- RiscaldamentoAutonomo
- Tipologia immobileAppartamento
- ProvinciaRoma
- ComuneFonte nuova
- Data23-07-2025 06:07:35
- CodiceEA-8F9986