Appartamento trilocale 80mq

Dati annuncio : Vendita Appartamento, Cinisello Balsamo
Nel cuore di Cinisello Balsamo, in via Montegrappa 157, nasce una nuova e affascinante opportunità abitativa:
un ex negozio al piano terra in fase di trasformazione in appartamento moderno e funzionale.
Il progetto prevede ambienti luminosi e ben distribuiti, pensati per offrire comfort, privacy e indipendenza.
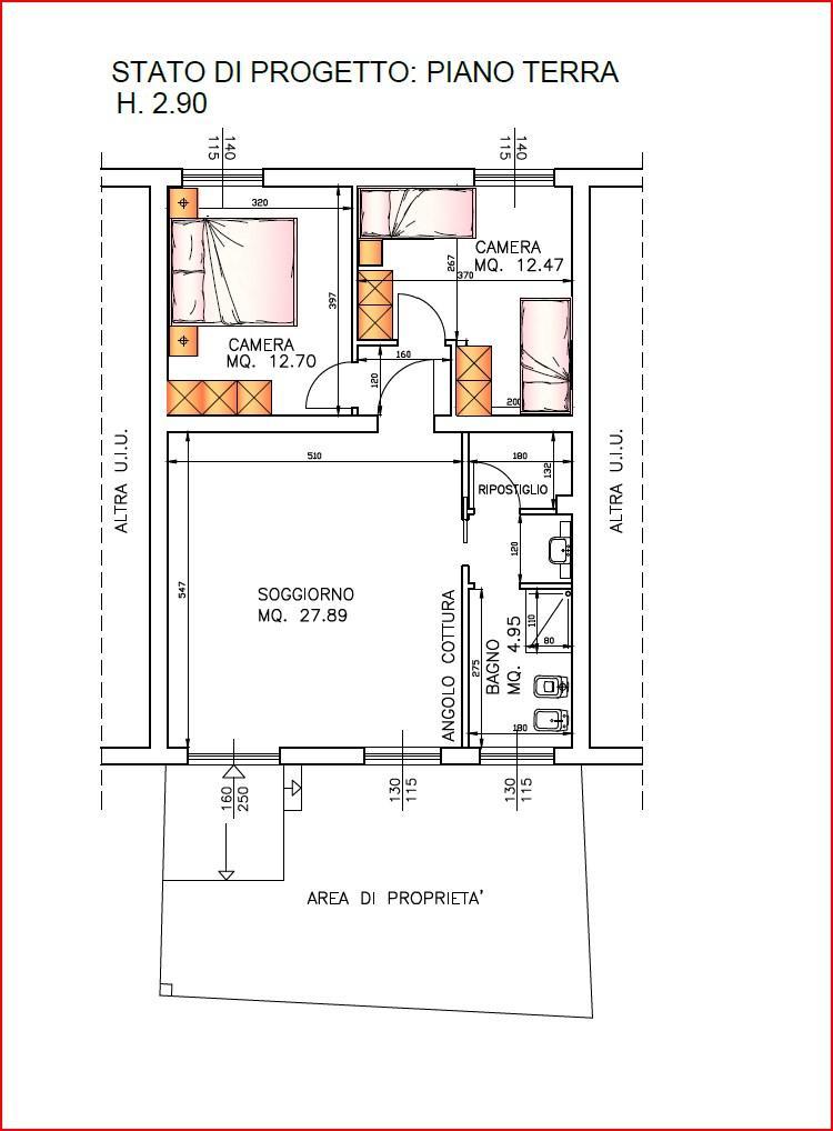
L’abitazione sarà composta da un ampio soggiorno con cucina a vista, perfetto per accogliere ospiti o trascorrere piacevoli momenti in famiglia, una camera matrimoniale accogliente, una seconda camera da destinare a studio o cameretta, un bagno finestrato con antibagno e un comodo ripostiglio.
L’ingresso è indipendente e affaccia su una piccola area esterna privata, ideale per creare un angolo verde, un posto bici o uno spazio relax.
Grazie all’altezza interna di 2,90 metri, ogni ambiente risulta arioso e pieno di luce naturale.
La posizione è strategica: a pochi minuti dal centro di Cinisello, vicino ai principali servizi, negozi, scuole e mezzi pubblici che collegano rapidamente con Milano e le principali arterie stradali.
Una soluzione unica e originale, perfetta per chi desidera un appartamento indipendente, pronto a diventare una casa dal carattere moderno, o un investimento sicuro in una zona in continua crescita.
- PropostaOffro
- ContrattoVendita
- Prezzo225.000,00 €
- Vani3
- Mq totali80
- Camere2
- Bagni1
- Classe energeticaE
- Classe energetica (ipe)23478
- Classe energetica (unità di misura)Kwh/m²a
- CucinaCucina a vista
- GiardinoPrivato
- Tipologia immobileAppartamento
- ProvinciaMilano
- ComuneCinisello balsamo
- Data10-10-2025 05:04:29
- CodiceEA-A86700