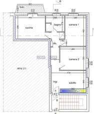
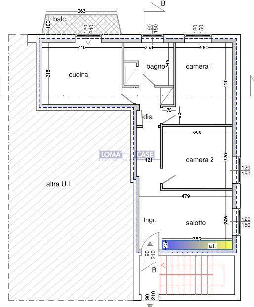
Appartamento trilocale 81mq
165.000,00 €

0 Piace
0 Piace
Dati annuncio : Vendita Appartamento, Lomagna
Lomagna, zona semicentrale del paese, proponiamo in vendita bellissimo appartamento trilocale, ottimamente ristrutturato e rifinito, costituito da ingresso, soggiorno, cucina abitabile con balcone, due camere matrimoniali ed un bagno, con annessa cantina al piano seminterrato. Serramenti nuovi con doppio vetro, zanzariere a tutte le finestre, impianto d´aria condizionata, porta blindata, abbassamenti con faretti, termovalvole. Cucina con piastre ad induzione. Possibilità di vendita completamente arredato. libero entro fine 2025
- PropostaOffro
- ContrattoVendita
- Prezzo165.000,00 €
- Vani3
- Mq totali81
- Camere2
- Bagni1
- StatoRistrutturato
- CucinaCucina abitabile
- ArrediArredato
- Tipologia immobileAppartamento
- ProvinciaLecco
- ComuneLomagna
- Data22-05-2025 06:14:58
- CodiceEA-E5D52D