Appartamento trilocale 85mq
365.000,00 €
0 Piace
0 Piace
Dati annuncio : Vendita Appartamento, Cecina
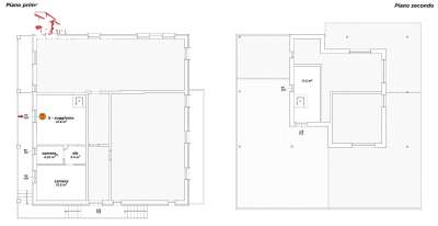
CECINA MARE, 20 METRI DALLA SPIAGGIA, vendesi appartamento in villetta trifamiliare nuova, in corso di realizzazione, consegna fine 2025, accessoriata di terrazza solarium di mq.90, posto auto e cantina. Al piano primo composto da soggiorno-cucina con balcone, bagno con finestra, camera matrimoniale con guardaroba, studio. Al secondo piano abbiamo un vano living collegato con scala interna e terrazza solarium vista mare di mq.90 circa. In vendita anche altro appartamento nello stesso contesto. Euro 365.000 CV-PA141-3 - SC9198942
- PropostaOffro
- ContrattoVendita
- Prezzo365.000,00 €
- Anno2025
- Vani3
- Numero piani3
- Piano1
- Mq terrazzo90
- Mq totali85
- Bagni1
- Classe energeticaA1
- StatoOttimo
- AscensoreNo
- CantinaSi
- RiscaldamentoAutonomo
- ArrediNo
- PanoramaVista mare
- BoxNo
- Cadenza spese condominialiAnnuali
- ProvinciaLivorno
- ComuneCecina
- Data15-09-2025 05:03:48
- CodiceEA-9476C6

Caterina pirrone immobiliare
Viale Europa - Firenze