Appartamento trilocale 85mq

Dati annuncio : Vendita Appartamento, Nova Milanese
SPLENDIDO 3 LOCALI
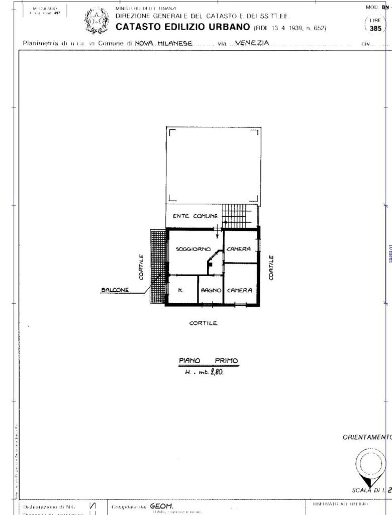
Nova Milanese – In tranquillo contesto residenziale di sole sei unità abitative, caratterizzato da basse spese condominiali, proponiamo in vendita, con incarico di mediazione in esclusiva, appartamento trilocale situato al primo piano di una palazzina di due piani complessivi. L’immobile è così composto: ingresso su un ampio e luminoso soggiorno con accesso a una spaziosa balconata, sulla quale affaccia anche la cucina abitabile, posta in adiacenza. Il disimpegno conduce alla zona notte, composta da due grandi camere da letto matrimoniali e da un ampio bagno finestrato, dotato di vasca. La soluzione si presenta in ottimo stato manutentivo, con ambienti ben curati e finiture di qualità: infissi in legno con doppio vetro, tendaggi esterni e impianto di riscaldamento autonomo, che garantisce un´efficiente gestione dei consumi. Completa la proprietà un box doppio in lunghezza di ben 44 mq, con altezza interna di 3 metri, ideale per ricovero di più veicoli e/o per soddisfare esigenze di deposito o hobby. Il box è proposto a parte al prezzo di € 35.000,00. Soluzione luminosa, funzionale e pronta per essere abitata. Ideale per chi cerca comfort e tranquillità in un contesto ben tenuto e riservato.
- PropostaOffro
- ContrattoVendita
- Prezzo225.000,00 €
- Vani3
- Numero piani2
- Piano1
- Mq totali85
- Camere2
- Bagni1
- Classe energeticaE
- Classe energetica (ipe)145
- Classe energetica (unità di misura)Kwh/m²a
- StatoOttimo stato
- CucinaCucina abitabile
- RiscaldamentoAutonomo
- BoxBox doppio
- Tipologia immobileAppartamento
- ProvinciaMonza e brianza
- ComuneNova milanese
- Data14-10-2025 06:11:22
- CodiceEA-492DC5