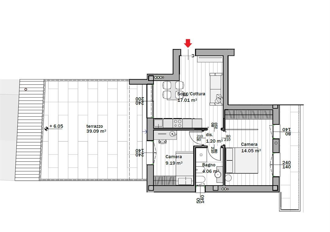
Appartamento trilocale 89mq

Dati annuncio : Vendita Appartamento, Monza
CIVICO 27 una scelta ideale per chi cerca una residenza moderna, confortevole e sostenibile, con una forte attenzione alla comunità, alla tecnologia ed all’ambiente.
APPARTAMENTO A9 - II design moderno e le architetture all´avanguardia caratterizzano il progetto, con particolare attenzione alla creazione di spazi vivibili che includono ampi giardini interni e grandi balconi. Questo approccio garantisce agli abitanti la massima fruibilità degli spazi valorizzando la luce naturale e il contatto con la natura. L´edificio è progettato secondo i più alti standard di efficienza energetica, certificato in classe A3. Questo assicura una riduzione significativa dei consumi energetici e dell´impatto ambientale, oltre a garantire un notevole risparmio sui costi delle utenze per i residenti. Ogni unità abitativa dispone di un sistema di riscaldamento autonomo, consentendo ai residenti di personalizzare la temperatura del proprio ambiente domestico secondo le proprie preferenze, garantendo comfort e efficienza energetica. La domotica avanzata integra tecnologie per la casa intelligente, consentendo ai residenti di controllare illuminazione, climatizzazione, sicurezza e molto altro attraverso dispositivi smart o applicazioni, per una vita quotidiana semplificata e futuristica.
- PropostaOffro
- ContrattoVendita
- Prezzo380.000,00 €
- Vani3
- Mq totali89
- Camere2
- Bagni1
- Classe energeticaA3
- CucinaCucina a vista
- RiscaldamentoAutonomo
- Tipologia immobileAppartamento
- ProvinciaMonza e brianza
- ComuneMonza
- Data04-04-2025 05:11:59
- CodiceEA-F3D32B