Appartamento trilocale 92mq

Dati annuncio : Vendita Appartamento, Lodi
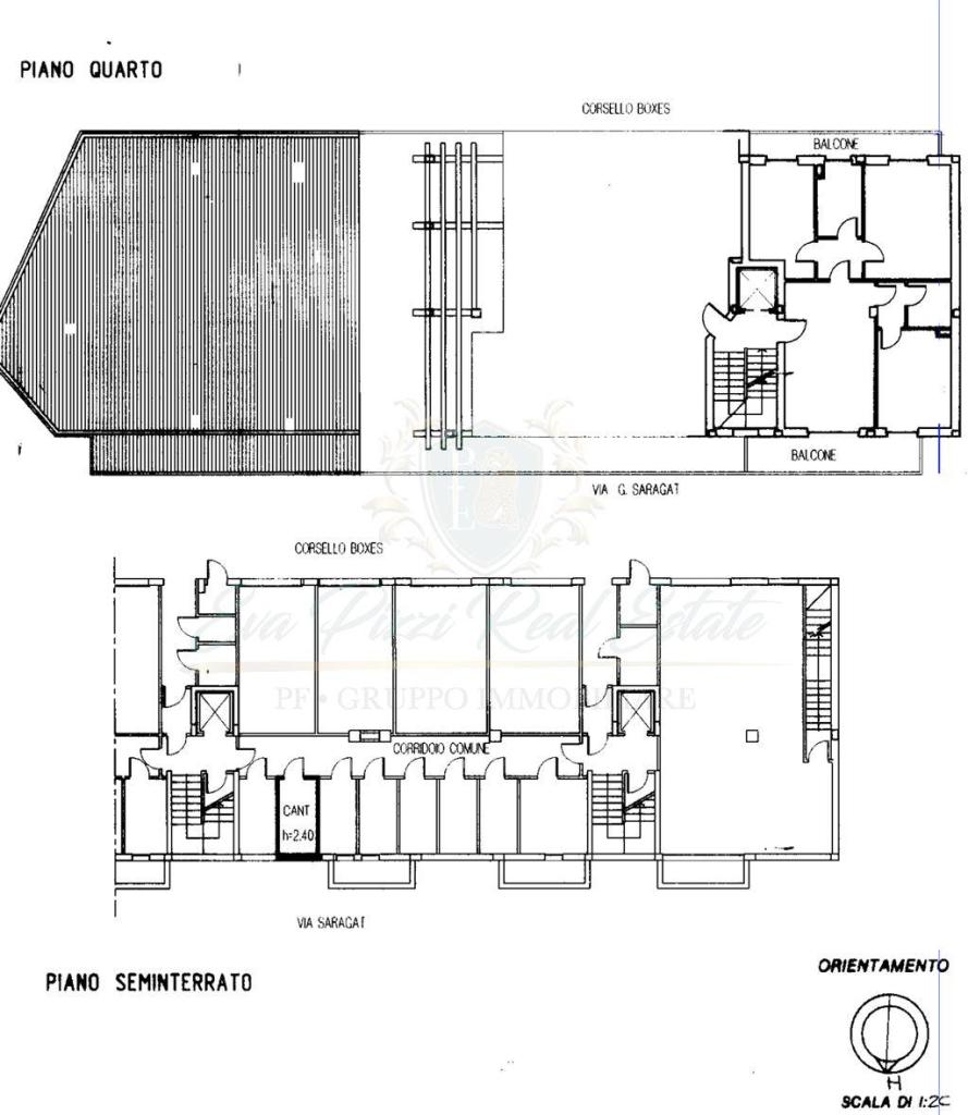
Lodi, Zona Albarola in via Saragat si propone la vendita di un appartamento di 92 mq, posto al quarto e ultimo piano con ascensore. L´immobile, con doppia esposizione, è composto da soggiorno e cucina abitabile serviti da ampio balcone, disimpegno, una camera da letto matrimoniale, seconda camera con balcone e doppi servizi di cui uno dotato di doccia e uno con vasca. Sono presenti finiture e dotazioni: pavimento in parquet, faretti nel controsoffitto, videocitofono, porta blindata, tende da sole, tapparelle elettriche nella zona giorno, aria condizionata e predisposizione allarme. La zona è ben servita; nelle immediate vicinanze si trovano scuole, bar tabacchi, ristoranti, servizi estetici e mezzi pubblici. Il quartiere è in forte espansione grazie alla riqualificazione avvenuta, che ha valorizzato ulteriormente l’area.
Completano la proprietà un box auto di 18 mq e una cantina.
Per maggiori informazioni +39 366-4461059 oppure 0371-1903125.
- PropostaOffro
- ContrattoVendita
- Prezzo208.000,00 €
- Vani3
- Mq totali92
- Camere2
- Bagni2
- Classe energeticaF
- Classe energetica (ipe)14118
- Classe energetica (unità di misura)Kwh/m²a
- AscensoreSi
- CucinaCucina abitabile
- BoxBox singolo
- Tipologia immobileAppartamento
- ProvinciaLodi
- ComuneLodi
- Data16-10-2025 05:35:11
- CodiceEA-425EBF