Appartamento trilocale 93mq

Dati annuncio : Vendita Appartamento, Fonte Nuova
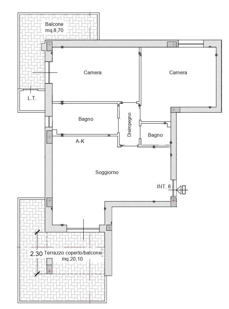
FONTE NUOVA – Tor Lupara – Proponiamo in vendita trilocale con terrazzo e balcone angolare in un moderno complesso residenziale di Nuova Costruzione a Tor Lupara, dotato di ascensore che collega direttamente al piano seminterrato dove sono disponibili Box, Cantine e Posti auto scoperti. L’appartamento si compone da salone con angolo cottura, due camere da letto matrimoniali, doppi servizi, balcone angolare e terrazzo.
Realizzato con materiali di pregio e tecnologie all’avanguardia, l’immobile garantisce massima efficienza energetica (Classe A4) e risparmio sulle bollette grazie all’assenza di gas, riscaldamento a pavimento, pompe di calore, pannelli solari e predisposizione per aria condizionata. Completa la proprietà un parco verde comune interno, perfetto per relax e tempo libero. Consegna prevista per Dicembre 2025. Prenota ora il tuo appuntamento, contatta la Bea Immobiliare allo 06/90018074 – 06/90018696 – 327/0411867 oppure [email protected]
- PropostaOffro
- ContrattoVendita
- Prezzo249.000,00 €
- Vani3
- Mq totali93
- Camere2
- Bagni2
- Classe energeticaA4
- Classe energetica (ipe)35
- Classe energetica (unità di misura)Kwh/m²a
- CucinaAngolo cottura
- TerrazzoSi
- RiscaldamentoA pavimento
- Tipologia immobileAppartamento
- ProvinciaRoma
- ComuneFonte nuova
- Data01-10-2025 06:06:55
- CodiceEA-FAFB48