Appartamento trilocale 93mq

Dati annuncio : Vendita Appartamento, Pozzuolo Martesana
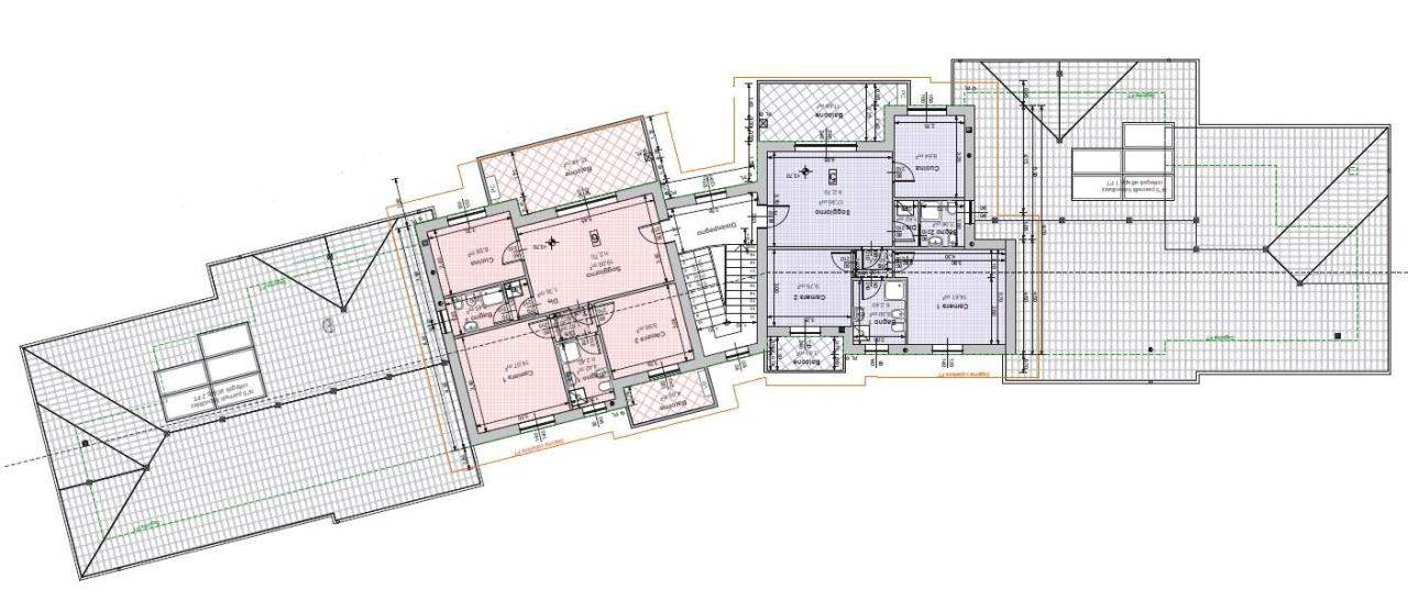
TRILOCALE nuova costruzione in un contesto residenziale di una palazzina a due piani composta da 6 unità abitative, giardini privati, struttura antisismica, isolamento termo-acustico perimetrale e di divisione tra le unità abitative.
L´immobile è composto da da 3 locali : soggiorno, due camere da letto, cucina abitabile , due bagni, cantina, 2 balconi . L´immobile prevede che ogni unità abbia un pannello fotovoltaico e l´assenza di allacci gas. Riscaldamento e raffrescamento a pavimento, ventilazione e deumidificazione con sistema VMC. I serramenti in PVC anta-ribalta con triplo vetrocamera, tapparelle in alluminio elettriche. Le finiture interne si possono scegliere da un ottimo capitolato.
E´ possibile abbinare un box auto con un costo a parte ( da 25.000 a 30.000 euro).
*La geo localizzazione ed i dati indicati nell´annuncio vanno considerati quali indicativi e non costituiscono elemento contrattuale.
- PropostaOffro
- ContrattoVendita
- Prezzo250.000,00 €
- Vani3
- Mq totali93
- Camere2
- Bagni2
- Balconi2
- Classe energeticaA4
- StatoNuova costruzione
- CucinaCucina abitabile
- BoxBox singolo
- Tipologia immobileAppartamento
- ProvinciaMilano
- ComunePozzuolo martesana
- Data11-08-2025 05:21:56
- CodiceEA-E4D91B