Appartamento trilocale 98mq

Dati annuncio : Vendita Appartamento, Monza
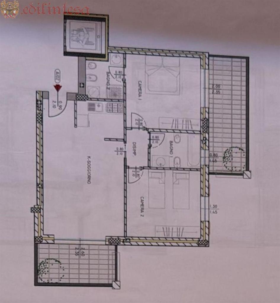
Monza nel quartiere di Casignolo, vendesi appartamento di tre locali più doppi servizi in recente costruzione in classe energetica A così composto: ingresso, soggiorno con cucina corredati da ampio balcone, camera matrimoniale corredata da ampio balcone e da bagno privato con doccia, seconda camera da letto e secondo bagno padronale finestrato con vasca.
Le finiture interne sono di pregio, pavimentazione nel soggiorno e nella cucina in ceramica di prima scelta, parquet nelle camere da letto e ceramica nei due bagni come pavimentazione e come rivestimenti delle pareti.
L´unità abitativa è dotata di aria condizionata, antifurto e zanzariere.
I serramenti sono in legno con doppio vetro e vetrocamera a taglio termico.
Il complesso è di recente costruzione ed ha un ampio giardino condominiale di 5.000 mq, sono presenti i pannelli solari termici.
Il riscaldamento è termoautonomo.
I consumi di acqua fredda/calda sono contabilizzati a consumo.
L´ubicazione del complesso residenziale consente un buon collegamento con il centro di Monza e con Milano.
Completa la proprietà una cantina.
Il prezzo di vendita è di euro 259.000.
Possibilità di box singolo a parte del prezzo ad euro 17.000.
- PropostaOffro
- ContrattoVendita
- Prezzo259.000,00 €
- Vani3
- Mq totali98
- Camere2
- Bagni2
- Classe energeticaA
- Classe energetica (ipe)1743
- Classe energetica (unità di misura)Kwh/m²a
- CucinaCucina a vista
- BoxBox singolo
- Tipologia immobileAppartamento
- ProvinciaMonza e brianza
- ComuneMonza
- Data10-10-2025 05:04:29
- CodiceEA-48491B