Attico 5 vani 107mq

Dati annuncio : Vendita Attico, Bolano
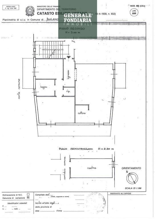
Rif. 5386 – ESCLUSIVA. Nel cuore di Ceparana, in una posizione centrale ma riservata, a soli cento metri da scuole, poste e principali servizi, proponiamo in vendita in esclusiva un appartamento di circa 107 mq, situato all’ultimo piano di una piccola palazzina di sole otto unità, senza ascensore.
Una soluzione che unisce la comodità del centro alla tranquillità e alla privacy.
L’ingresso si apre su un ampio soggiorno particolarmente luminoso, arricchito da due balconi ristrutturati nel 2024 e dotati di tende recenti che ne aumentano la vivibilità.
La zona giorno prosegue con l’area pranzo e la cucina a vista su misura e camino funzionante, impreziosita dal pavimento in cotto che dona calore e carattere agli ambienti.
Un comodo disimpegno conduce alla zona notte, composta dal ripostiglio, da una cameretta singola con ulteriore balcone, un bagno finestrato e una spaziosa camera matrimoniale con accesso al balcone privato.
Essendo l’ultimo piano, tutti e tre i balconi regalano una piacevole vista aperta.
A completare la proprietà troviamo una cantina finestrata al piano seminterrato, luminosa e spaziosa, e un posto auto scoperto, assegnato all’interno dell’area condominiale riservata e accessibile solo ai residenti.
L’appartamento gode di ottima esposizione e si presenta restaurato e ben mantenuto, ed è libero da subito, senza necessità di lunghi tempi di consegna.
Tra le dotazioni figurano due condizionatori, uno nella zona giorno e uno nella camera matrimoniale, e riscaldamento centralizzato con gestione autonoma che consente un uso efficiente e controllato.
Sono presenti mattoncini di recupero provenienti da una storica ferrovia, un elemento unico che testimonia la cura per i dettagli e dona carattere autentico agli ambienti.
Vi è inoltre la possibilità di includere parte dell’arredo: la cucina completa di elettrodomestici, una libreria artigianale realizzata su misura, la cameretta, il divano, il letto matrimoniale e un pregiato armadio in legno di castagno.
Il prezzo è trattabile!
L´indirizzo sull´annuncio è approssimativo.
Per visionare l´immobile contattateci al 0187939990 3885710341 saremo lieti di fissare un appuntamento. Generale Fondiaria Immobili, Ceparana Via Italia 34/36
- PropostaOffro
- ContrattoVendita
- Prezzo198.000,00 €
- Vani5
- Mq totali107
- Camere2
- Bagni1
- Balconi2
- Classe energeticaF
- AscensoreNo
- CucinaCucina a vista
- RiscaldamentoCentralizzato
- Tipologia immobileAttico
- ProvinciaLa spezia
- ComuneBolano
- Data06-09-2025 05:06:45
- CodiceEA-9834F0