bilocale 0mq

1,00 €
0 Piace
0 Piace

Dati annuncio : Vendita Bivani, Carrara

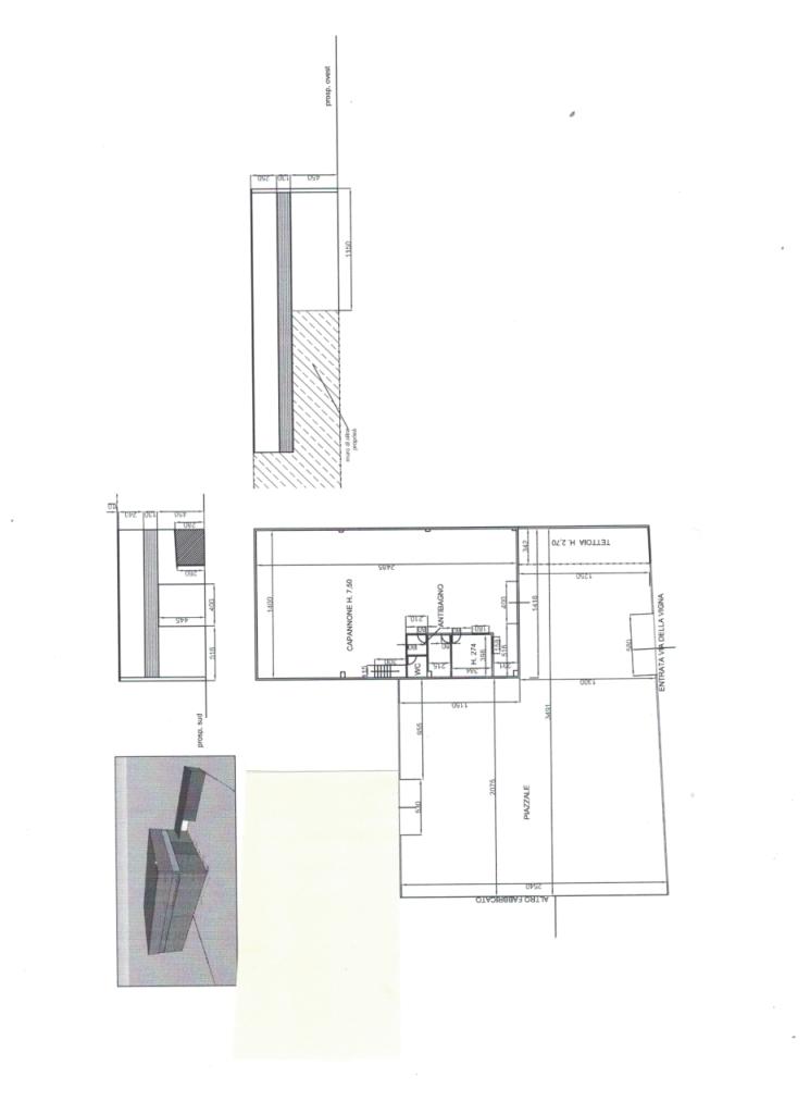
Capannone categoria c/3 di mq. 350 con uffici, possibilità di carroponte, piazzale di mq. 800-
immobile disponibile sia per la vendita che per affitto.

  • PropostaOffro
  • ContrattoVendita
  • Prezzo1,00 €
  • Vani2
  • Classe energetica (ipe)0.0
  • AscensoreNo
  • TerrazzoNo
  • GiardinoNs
  • CantinaNo
  • ProvinciaMassa-carrara
  • ComuneCarrara
  • Data12-10-2025 06:04:21
  • CodiceEA-A9B226