bilocale 50mq
Dati annuncio : Vendita Bivani, Sestu
Sestu - Pressi Via Monserrato
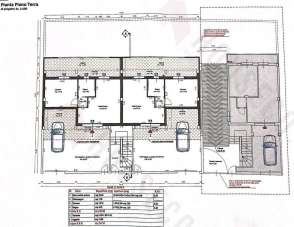
In una delle aree più richieste e in espansione di Sestu, proponiamo in vendita due moderni appartamenti in fase di costruzione, entrambi di tipologia bilocale e situati al piano terra di un elegante mini condominio, di sole sei unità abitative, di recente realizzazione. Gli appartamenti saranno così composti: soggiorno, con angolo cottura, disimpegno, camera, bagno e due ampie verande.
Gli immobili si distinguono per l’attenzione ai dettagli, le finiture di alto livello e la qualità costruttiva che garantisce comfort abitativo, efficienza energetica e massima durabilità nel tempo.
Ogni appartamento sarà consegnato completo di posto auto privato e cantina, offrendo così tutto lo spazio e la comodità necessari per vivere al meglio.
La posizione strategica, a pochi minuti dai principali servizi, scuole e collegamenti verso Cagliari, rende questa proposta ideale sia per chi cerca una prima abitazione moderna e funzionale, sia per chi desidera un investimento sicuro e di valore nel tempo.
Contattaci subito per maggiori informazioni o per fissare un appuntamento: scopri in anteprima tutti i dettagli e scegli la casa perfetta per te!
Classe Energetica: A4
Euro: 150.000,00 + IVA
- PropostaOffro
- ContrattoVendita
- Prezzo150.000,00 €
- Anno2025
- Vani2
- Numero piani1
- Mq totali50
- Camere1
- Bagni1
- Classe energeticaA+
- Classe energetica (ipe)0.0
- StatoNuovo
- AscensoreNo
- TerrazzoNo
- GiardinoNs
- CantinaNo
- BoxSi
- ProvinciaCagliari
- ComuneSestu
- Data08-10-2025 05:40:16
- CodiceEA-888B3C









