bilocale 57mq

205.000,00 €
0 Piace
0 Piace

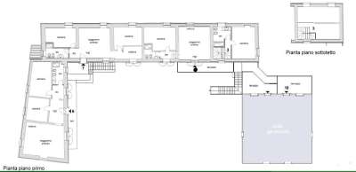
Sarzana Ristrutturazione completa di un casale del 1866. L’immobile si presentava come un tradizionale casale di campagna, composto al piano primo da appartamenti privati ed al piano terra da cantine di stoccaggio attrezzature e materiale, oltre ad un antico fienile ed un recente garage. Grazie ad una parziale demolizione del fabbricato nelle parti collabenti, si è data nuova vita a tutto il complesso storico. E’ stata infatti realizzata una porzione di ampliamento, che prolunga il fabbricato esistente.
A lavori ultimati, ogni nuova unità immobiliare presenta impianti indipendenti, alimentati esclusivamente ad energia elettrica, con pompe di calore e boiler privati. Inoltre, ogni unità ha un impianto fotovoltaico dedicato, proporzionato alle dimensioni per garantire un’alta efficienza di consumi. Il fabbricato storico, totalmente ristrutturato a livello strutturale, impiantistico e di distribuzione di spazi, vede la classe energetica precedente trasformata da classe G - la più bassa ed energivora - alla più
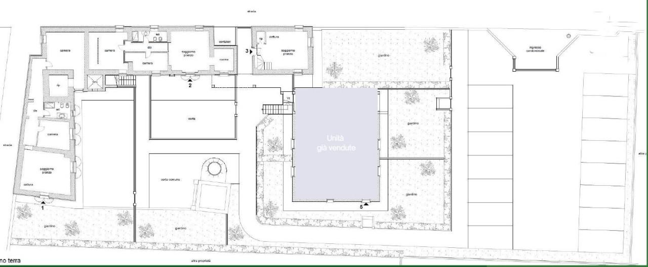
performante classe A. Nella ristrutturazione completa del complesso residenziale si è voluta mantenere la convivialità tipica dei casali agricoli, recuperando la corte interna. In questa zona è stato ripristinato il pavimento originale, oltre all’antico
lavatoio in marmo e l’annesso pozzo Questa zona è stata valorizzata per creare una zona di coabitazione per tutto il complesso, da condividere tra i futuri condòmini. A tal fine, nella corte è stato realizzato un barbecue ed arricchita l’antica vasca del lavatoio con un arredo verde, un’illuminazione dedicata e un punto acqua.

Appartamento ( numero 9 ) frutto di un’accurata ristrutturazione che ha saputo preservare e valorizzare ogni dettaglio storico, mantenendo intatto il fascino del passato.
La proprietà, situata al piano primo con ingresso indipendente, si sviluppa su un unico livello per una superficie complessiva di 57 mq suddivisi in 2 locali.

Distribuzione interna:

luminoso soggiorno con angolo cottura, camera matrimoniale, bagno con doccia.

Terrazza di 12 mq.

Grazie all’esposizione a sud, l’immobile gode di grande luminosità naturale e di una vista aperta.

Efficienza energetica:
Classe energetica A4, che garantisce bassi consumi e risparmio. Gli impianti sono stati progettati per il massimo comfort e includono:

pompe di calore con split interni (riscaldamento e raffrescamento) boiler per acqua calda sanitaria, sistema di ricambio d’aria in zona living e notte, impianto fotovoltaico. ( 1,8 KW )

Possibilità di usufruire di bonus acquisto fino a € 25600 in 10 anni.

  • PropostaOffro
  • ContrattoVendita
  • Prezzo205.000,00 €
  • Anno2025
  • Vani2
  • Numero piani1
  • Mq totali57
  • Camere1
  • Bagni1
  • Classe energeticaA+
  • Classe energetica (ipe)0.0
  • StatoRistrutturato
  • AscensoreNo
  • CucinaAngolo cottura
  • TerrazzoNo
  • GiardinoNs
  • CantinaNo
  • RiscaldamentoAutonomo
  • BoxSi
  • ProvinciaLa spezia
  • ComuneSarzana
  • Data19-09-2025 05:04:42
  • CodiceEA-66523D