Box monolocale 95mq

300,00 €
0 Piace
0 Piace

Dati annuncio : Affitto Box, Spinetoli

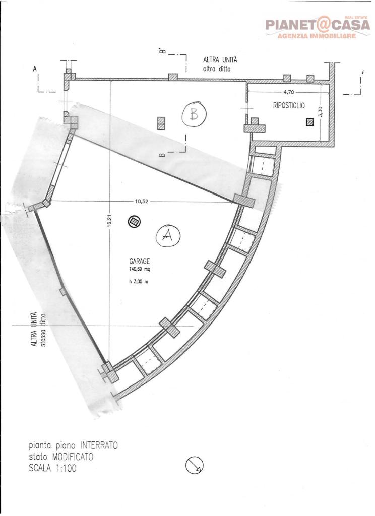
Garage - Magazzino/Deposito di circa mq 90, in vendita nelle Marche, in provincia di Ascoli Piceno, nel Comune di Spinetoli e precisamente a Pagliare del Tronto, in zona centrale, di facile accesso. L´immobile posto al piano seminterrato di un edificio di civile abitazione, con comoda rampa di accesso delimitata da cancello elettrico. E´ in ottime condizioni, privo di umidit, dotato di superficie pavimentata, impianto elettrico, saracinesca elettrica. Ideale per rimessaggio auto d´epoca, deposito mobili e/o materiali vari (no infiammabili). Affittasi a referenziati con reddito dimostrabile Per INFO: Agenzia Pianeta casa - Pagliare del Tronto (AP) - Via A. De Gasperi, 4 - Tel. 388 358 1930 - SC9438255

  • PropostaOffro
  • ContrattoAffitto
  • Prezzo300,00 €
  • Vani1
  • PianoI
  • Mq totali95
  • StatoBuono
  • AscensoreNo
  • CantinaNo
  • ArrediNo
  • Cadenza spese condominialiAnnuali
  • ProvinciaAscoli piceno
  • ComuneSpinetoli
  • Data30-07-2025 05:06:06
  • CodiceEA-5BD6EF