C.da San Bartolomeo 350mq

280.000,00 €
0 Piace
0 Piace

Dati annuncio : Vendita Case, Monopoli

Monopoli Collina
Porzione di villa d´epoca del 1800 in vendita in Contrada San Bartolomeo
In posizione privilegiata nel cuore dell’agro di Monopoli, proponiamo in vendita in contrada San Bartolomeo, porzione di villa del 1800, splendido esemplare di architettura rurale pugliese, perfettamente integrata nel paesaggio circostante.
La villa si estende su una superficie coperta di 330 mq distribuiti su due piani.
Il primo piano, caratterizzato in parte da un´architettura più antica e suggestiva, con volte a botte è composto da 4 vani più accessori per un totale di circa 120 mq interni, a cui si aggiungono 2 ampie verande, di cui, una antistante ed un´altra con accesso dal vano cucina.
Il piano terra si compone di 5 ampi vani in pietra con tipiche volte a botte, ampia antica cantina in pietra, che ci invita ad immaginare la realizzazione di una fantastica spa, e 2 locali di sgombero il tutto per una superficie di mq 140 ca.
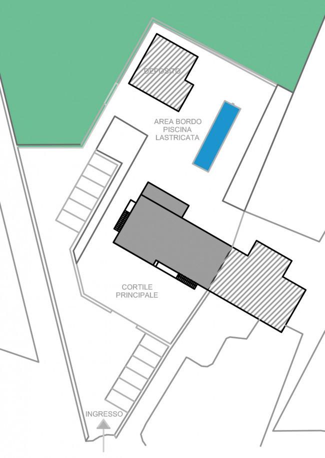
Grande rimessa di mq 70 con forno ubicati di fronte al fabbricato principale.
L´intero stabile insiste su di un piazzale, la cui metratura, consentirebbe la realizzazione di un comodo accesso privato ed indipendente alla proprietà.
Il terreno tra ulivi ed alberi da frutto, è un paradiso privato di circa 8400 mq, circondato da muri a secco, per una completa privacy.
L’immobile, allo stato odierno è da ristrutturare, ma le caratteristiche dello stesso, favoriscono coloro che desiderano sviluppare un progetto di ristrutturazione, usufruendo dei finanziamenti in atto della regione puglia (minipia turismo).
Rappresenta un ottimo investimento per chi è alla ricerca di un rifugio familiare o a chi è alla ricerca di un investimento nel settore dell’ospitalità, grazie alla sua conformazione e alla vicinanza delle maggiori attrazioni della puglia.
Abbiamo inserito parte delle foto progettuali di ristrutturazione, per mostrarvi il forte potenziale dell´immobile pensato per voi!.

  • PropostaOffro
  • ContrattoVendita
  • Prezzo280.000,00 €
  • Anno1800
  • Numero piani2
  • Mq totali350
  • Classe energeticaE
  • Classe energetica (ipe)0.0
  • StatoDa ristrutturare
  • AscensoreNo
  • TerrazzoNo
  • GiardinoNs
  • CantinaNo
  • ProvinciaBari
  • ComuneMonopoli
  • IndirizzoC.da san bartolomeo
  • CodiceEA-D01575