Capannone 1400mq
10.000,00 €

0 Piace
0 Piace
Dati annuncio : Affitto Capannone, Milano
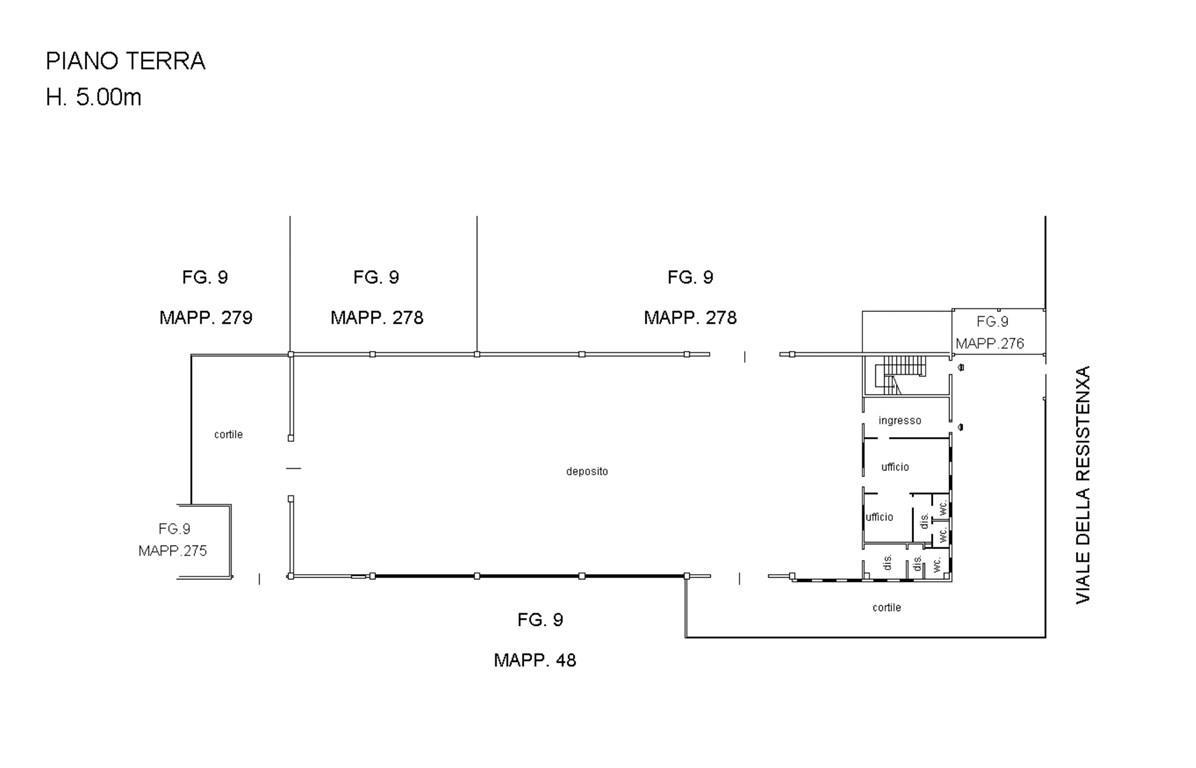
BUCCINASCO (MI), VIA DELLA RESISTENZA 17-19 - Falco Immobiliare propone IN ESCLUSIVA AMPIO CAPANNONE da 1.400 MQ su un unico piano, collocato su via di grande passaggio veicolare e facilmente accessibile grazie a collegamenti autostradali e tangenziali. La proposta offre uffici e spogliatoi e si presta a utilizzo flessibile. Ideale soprattutto per SHOWROOM COMMERCIALE. L´immobile è inoltre frazionabile in due soluzioni, rispettivamente di 600 e 800 mq. IN LOCAZIONE A 120.000 EURO annui oltre Iva.
- PropostaOffro
- ContrattoAffitto
- Prezzo10.000,00 €
- Mq totali1400
- Classe energeticaG
- Classe energetica (ipe)65
- Classe energetica (unità di misura)Kwh/m²a
- Tipologia immobileCapannone
- ProvinciaMilano
- ComuneMilano
- Data05-07-2025 05:25:42
- CodiceEA-49D591