Capannone 15 vani 1370mq

550.000,00 €
0 Piace
0 Piace

Dati annuncio : Vendita Capannone , Arcola

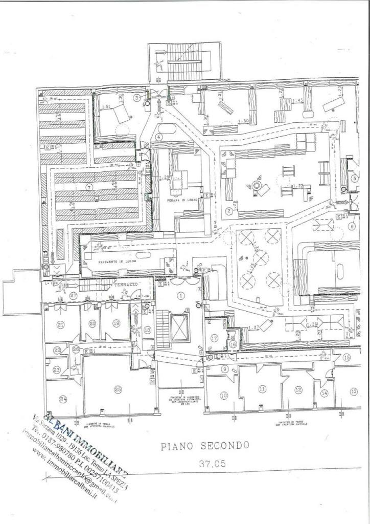
Fondo commerciale in vendita Arcola. Su strada ad alto passaggio, grande locale commerciale in vendita, posto al piano secondo in grande edificio con ascensore. Il locale con grande area parcheggio in comune ad altre due unità immobiliari, è attualmente composto da un totale di 15 vani di cui uno, misura 700 mq circa destinato ad area vendita con bagno per clienti, 7 vani uso ufficio e uno archivio con due bagni completi di doccia a servizio degli stessi, 2 ripostigli, un magazzino di circa 175 mq, un locale laboratorio di circa 45 mq, oltre ad una serie di locali tecnici e locali per uscite di sicurezza. Raggiungibile facilmente con mezzi anche di grandi dimensioni. Possibilità di acquistare altre metrature a partire da 300 mq fino a 800 mq.

  • PropostaOffro
  • ContrattoVendita
  • Prezzo550.000,00 €
  • Vani15
  • Numero piani1
  • Mq totali1370
  • Bagni3
  • Classe energeticaF
  • Classe energetica (ipe)0.0
  • StatoBuono
  • AscensoreNo
  • TerrazzoNo
  • GiardinoNs
  • CantinaNo
  • BoxSi
  • Tipologia immobileCapannone
  • ProvinciaLa spezia
  • ComuneArcola
  • Data18-08-2025 05:07:34
  • CodiceEA-9B7B2C