Casa Indipendente 10 vani 284mq

Dati annuncio : Vendita Casa Indipendente, Pesaro
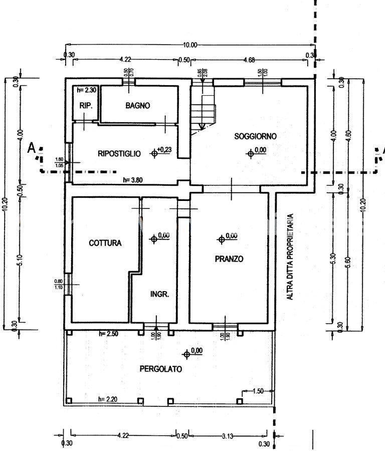
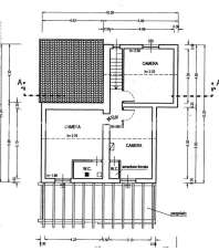
Rif. 4357 - MONTEGAUDIO (vicinanze) Nel verde della campagna Marchigiana, in posizione panoramica vendesi casa colonica con dependance, il tutto in ottimo stato di manutenzione. Una strada privata conduce alla proprietà ubicata in un poggetto con vista che spazia fino al mare, la zona è tranquilla e consigliata per godere in pieno relax la vostra dimora quotidiana. L´immobile si sviluppa su due piani con al piano terra un ampio ingresso una cucina abitabile, un ampio soggiorno/pranzo con camino, un ripostiglio ora adibito a dispensa ma trasformabile tranquillamente in camera da letto, un bagno ed un ulteriore piccolo ripostiglio. Una comoda scala porta alla zona notte al piano secondo con tre ampie camere da letto di cui due con bagno. La dependance è composta da un salone con angolo cottura, una camera matrimoniale, un ripostiglio adibito a cabina armadio ed un bagno. Completano la proprietà una piscina circondata da una comoda zona relax, una zona barbecue, un curatissimo giardino circostante, un capanno in lamiera uso deposito e oltre sei ettari di terreno agricolo. La proprietà è attualmente locata per brevi periodi ma per tutto l´anno con AIRBNB. Questa proprietà può essere interessante sia come investimento (si accetta anche piccola permuta) ma anche per essere abitata stabilmente in quanto in mezz´ora o poco più si raggiunge la costa.
L’ubicazione in mappa non rispecchia per questione di privacy l’esatta posizione dell’immobile.
La superficie indicata è intesa come superficie commerciale dell´insieme.
Contattaci subito per ricevere maggiori informazioni
- PropostaOffro
- ContrattoVendita
- Prezzo550.000,00 €
- Vani10
- Numero piani2
- Mq totali284
- Camere3
- Bagni3
- StatoOttimo stato
- CucinaCucina abitabile
- GiardinoPrivato
- Tipologia immobileCasa indipendente
- ProvinciaPesaro e urbino
- ComunePesaro
- Data18-08-2025 05:21:08
- CodiceEA-224C32