Casa Indipendente 10 vani 478mq

Dati annuncio : Vendita Casa Indipendente, Cesena
CESENA Via Curiel.
Scopri questa straordinaria residenza indipendente situata nel cuore di Cesena, perfetta per una soluzione bifamiliare o per liberi professionisti e commercianti che desiderano coniugare casa e lavoro. L´immobile si sviluppa su due livelli fuori terra e un piano interrato, offrendo una superficie totale di 478 mq commerciali.
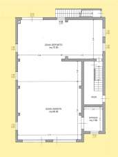
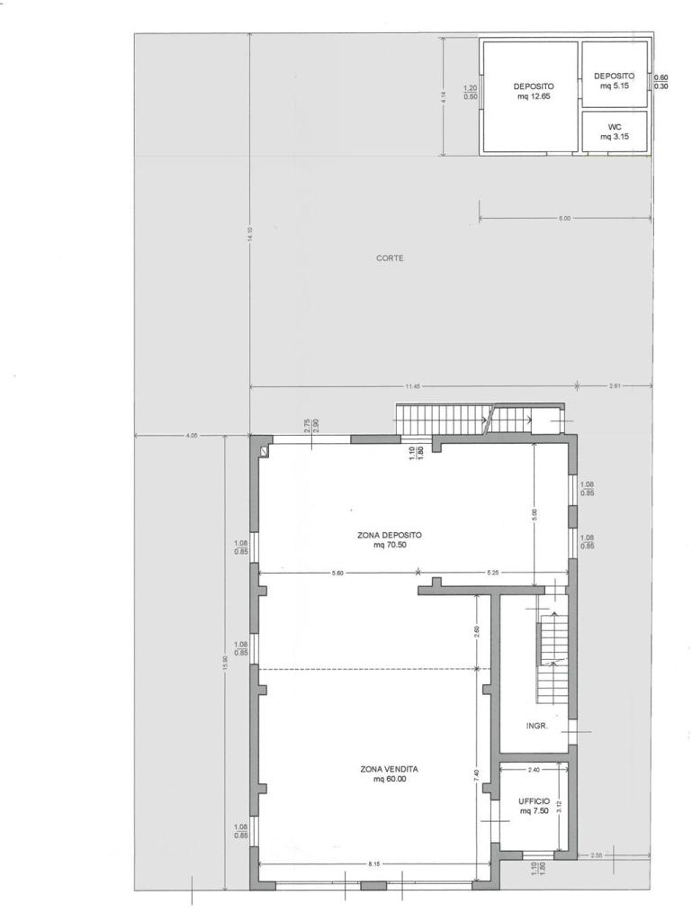
Al piano terra, troverai un elegante negozio o uno studio professionale con ampie vetrine sul fronte strada, ideale per attirare clienti, e una zona deposito. Il piano terra è comunque trasformabile in abitativo. Attualmente il negozio è affittato con un contratto temporaneo e per un periodo limitato.
Al primo piano, un appartamento spazioso ti accoglie con una zona giorno composta da: un pratico soggiorno, una comoda veranda dotata di camino e una cucina funzionale. Oltre a uno studio, tre camere da letto matrimoniali e due bagni. La flessibilità degli spazi permette di adattare l´immobile alle tue esigenze specifiche, con la possibilità di ricavare più unità immobiliari o di ristrutturare secondo i tuoi gusti.
Il cortile esclusivo con possibilità di parcheggiare diverse auto e la dependence aggiungono un tocco di esclusività e comfort.
Il piano interrato attualmente inutilizzato offre ulteriori possibilità di sviluppo. Questa proprietà è una vera opportunità per chi cerca una soluzione abitativa versatile e multifunzionale.
Non perdere l´opportunità di trasformare questo immobile unico nella tua nuova casa o nel tuo nuovo spazio direzionale o commerciale!
Per maggiori informazioni e per organizzare una visita: ACASA_CESENA : Geom. Andrea Placuzzi tel 328/8255174. Tutte le proposte su ACASA.INFO.
NB le presenti informazioni non costituiscono elemento contrattuale.
- PropostaOffro
- ContrattoVendita
- Prezzo640.000,00 €
- Vani10
- Mq totali478
- Camere3
- Bagni2
- Classe energeticaF
- Classe energetica (ipe)32679
- Classe energetica (unità di misura)Kwh/m²a
- CucinaCucina abitabile
- GiardinoPrivato
- Tipologia immobileCasa indipendente
- ProvinciaForli-cesena
- ComuneCesena
- Data05-09-2025 05:03:45
- CodiceEA-0B1F53